Top Banner
Поиск по алфавиту

600.600 € - VODICE Квартира REC-ID 1283297

Галерея
  • Город: VODICE
  • Цена (€): 600.600 €
  • Район: 143 m2
  • Комнат: 2
  • Вид: море
  • Участок: 225 m2
  • Ванных комнат: 3
  • Транспорт: -
  • Близость моря: -
  • Расстояние до центра: 0 m
  • Расстояние до моря: 0 m

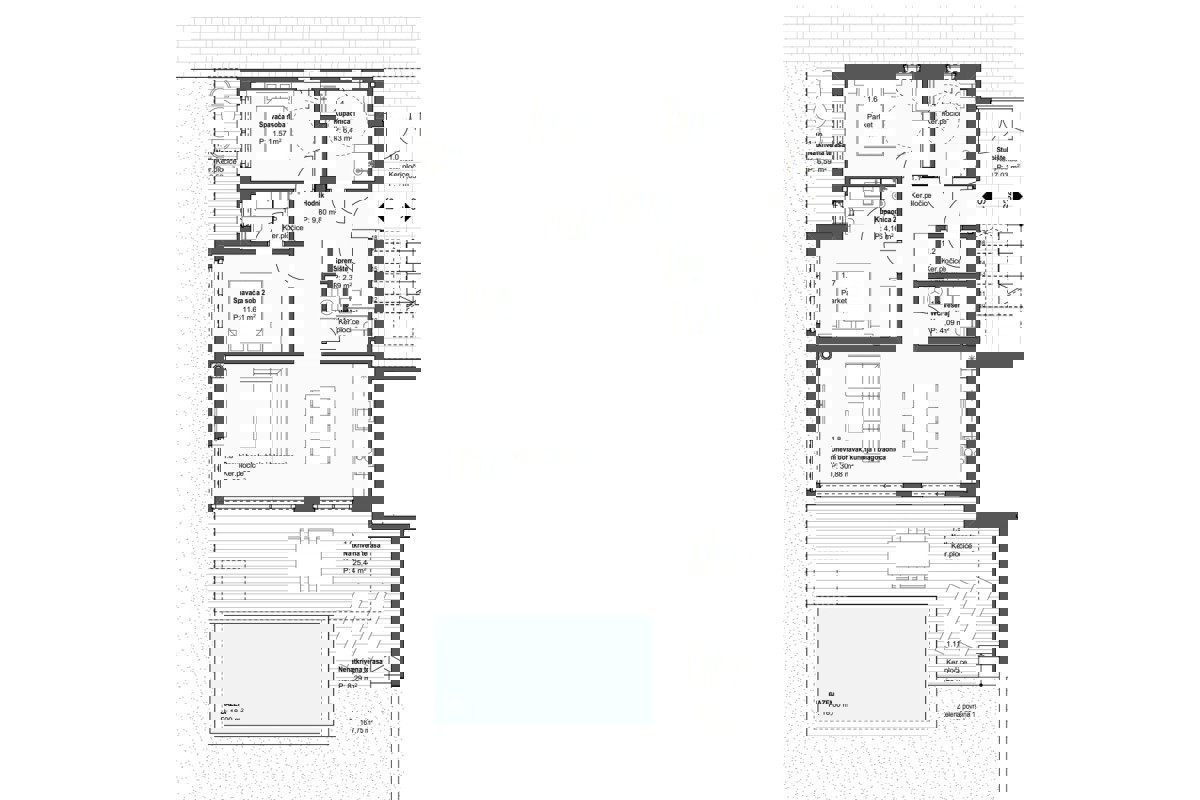
Мы предлагаем просторную и функциональную квартиру S1 на первом этаже современного новостройки, идеально подходящую для спокойной семейной жизни или в качестве инвестиции. Общая полезная площадь составляет 143 м2, квартира выделяется большим садом площадью 225 м2, который включает в себя ландшафтный сад, террасу и частный бассейн площадью 18 м2.   Продуманная планировка ведет из прихожей через спальню в центральную гостиную открытой планировки. Кухня, столовая и гостиная объединены в просторное помещение с большим количеством естественного света и прямым выходом на улицу через большие стеклянные стены.   Квартира имеет две комфортабельные спальни, две современные ванные комнаты, дополнительную прачечную с туалетом и кладовую. Из спален есть выход на крытую террасу и в сад, что еще больше подчеркивает ощущение уединения и простора.   Расположение чрезвычайно удобное – тихое место, а все удобства, такие как центр города, пляж и магазины, находятся всего в нескольких минутах ходьбы.

Связаться с продавцом

Kонтакт: BROKER - Real Estate Agency
Запрос на недвижимость: Квартира - Продается - VODICE
RECID: 1283297

Добавить недвижимость
Right Details Banners
Roto Details Banners