Top Banner
Поиск по алфавиту

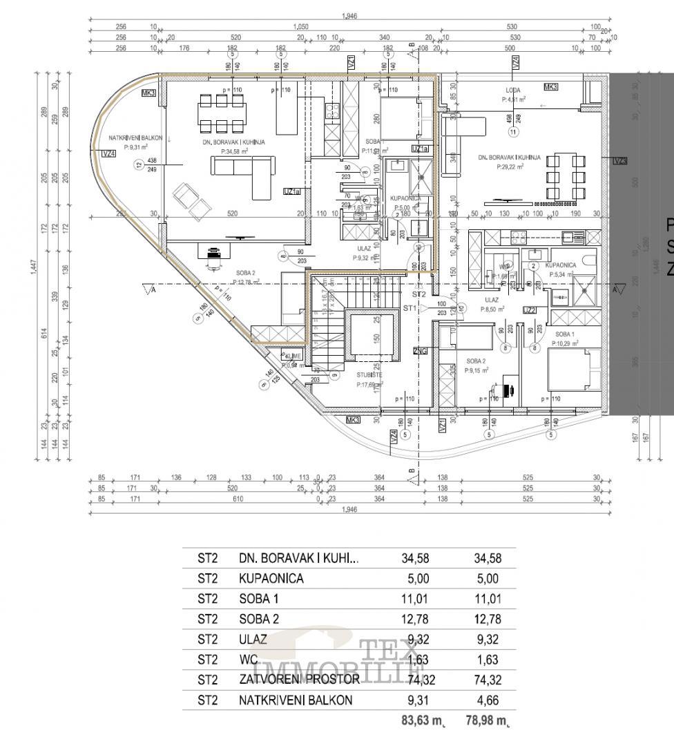
363.400 € - POREČ Квартира REC-ID 1240605

Галерея
  • Город: POREČ
  • Цена (€): 363.400 €
  • Район: 79 m2
  • Комнат: 3
  • Вид: море
  • Ванных комнат: 2
  • Транспорт: -
  • Близость моря: -
  • Расстояние до центра: 0 m
  • Расстояние до моря: 2000 m

Продаётся квартира общей чистой площадью 79 м², расположенная на третьем этаже новостройки в тихом районе недалеко от Пореча, всего в нескольких минутах езды от моря и городской инфраструктуры. Квартира является частью современного жилого-коммерческого здания, состоящего из двенадцати жилых единиц и двух коммерческих помещений, расположенных на первом и трёх верхних этажах. Внутренняя планировка включает светлую гостиную, объединённую с кухней и столовой, две спальни, современную ванную комнату, отдельный туалет и просторную террасу с красивым видом на море. К квартире прилагаются два наружных парковочных места. Здание будет оснащено лифтом, а квартиры — высококачественными ПВХ окнами с шестикамерным профилем, тройным остеклением, москитными сетками и электрическими жалюзи. Планируется установка входных охранных дверей, видеодомофона, системы тёплого пола во всех помещениях через тепловой насос и кондиционеров в каждой комнате. Керамическая плитка первого класса выбирается по желанию покупателя, что позволяет создать индивидуальный интерьер. Завершение строительства, получение разрешения на эксплуатацию и регистрация собственности ожидаются в марте 2027 года. НДС включён в стоимость, поэтому покупатель не оплачивает налог на передачу недвижимости. В непосредственной близости находятся школа, детский сад, аптека, кафе, рестораны и торговые центры, что делает этот объект отличным выбором для семейного проживания, туристической аренды или долгосрочного инвестирования.

Связаться с продавцом

Kонтакт: Tex immobilie
Запрос на недвижимость: Квартира - Продается - POREČ
RECID: 1240605

Agent

Агент, отвечающий за эту недвижимость в POREČ с ценой 363.400 €

Tex Immobilie

Телефон: 0994705455
Мобильный телефон: 0989826003

Сделать звонок Связаться с продавцом

КОНТАКТ РЕКЛАМОДАТЕЛЯ

При ответе на объявление обязательно укажите шифр объекта недвижимости: REC-1240605

Tex immobilie

Tex immobilie

Телефон: 00385989826003
Мобильный телефон: 00385989826003

Подробнее об агентстве
Добавить недвижимость
Right Details Banners
Roto Details Banners