
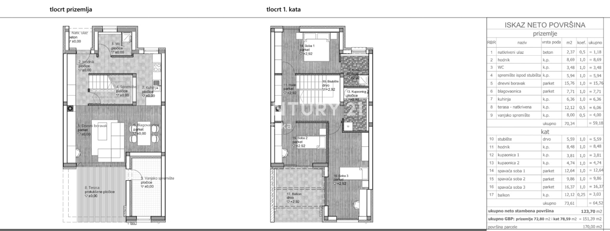
Новая коттеджная застройка с частным садом – функциональный семейный дом с двумя ванными комнатами Представляем вам современно спроектированный таунхаус, расположенный в тихом и доступном месте, идеально подходящем для семей. В непосредственной близости находятся все ключевые объекты инфраструктуры: школа, детский сад, магазины, аптека, почта и центр города. Эта недвижимость является частью жилого комплекса из шести домов, к ней прилагается собственный сад площадью около 75 м2 – дополнительно оплачивается по цене 150 евро/м2. Технические данные и оснащение: - Строительство по принципу «под ключ» - Завершение строительства запланировано до конца 2026 года - Двухэтажный дом: цокольный этаж + этаж - Плоская, неэксплуатируемая крыша - Высокая энергоэффективность – класс A+ - Ориентация: север – юг Инженерные системы и материалы: - Отопление с помощью электрического теплового насоса (во всех помещениях) - Охлаждение через кондиционеры - Окна из ПВХ белого цвета с трехслойным стеклопакетом и встроенными рольставнями - Полы: сочетание керамической плитки и паркета - Включено внешнее хозяйственное помещение Гибкость комплектации: Продавец оставляет за собой право изменять оборудование, предусмотренное проектом, но исключительно в согласовании с покупателем – с целью максимального соответствия вашим желаниям и потребностям. План этажа и расположение помещений – см. прилагаемый план и перечень площадей ЦОКОЛЬНЫЙ ЭТАЖ: Крытый вход, прихожая, гостевой туалет, кладовая под лестницей, кухня, столовая, гостиная с выходом на крытую террасу, внешнее хозяйственное помещение. ЭТАЖ: Лестница, коридор, две ванные комнаты, три спальни, балкон. Готов ответить на любые ваши вопросы; Саша Мартишек, лицензированный агент Т: 097 754 77 75 E: sasa.martisek@c21.hr CENTURY 21 ЛИДЕР НЕДВИЖИМОСТИ
Агент, отвечающий за эту недвижимость в VARAŽDIN с ценой 371.100 €
Saša Martišek
Телефон: +385977547775
При ответе на объявление обязательно укажите шифр объекта недвижимости: REC-1208361
CENTURY 21 Lider Nekretnine
Телефон: +38598492873
Подробнее об агентствеПоследние объекты
Связанные объекты недвижимости