Top Banner
Ricerca alfabetica

99.500 € - SVETVINČENAT Terreno REC-ID 1272309

Galleria
  • Città: SVETVINČENAT
  • Prezzo (€): 99.500 €
  • Superficie: 526 m2
  • Trasporti: -
  • Vicinanza mare: -
  • Distanza dal centro: 6000 m
  • Distanza dal mare: 20000 m

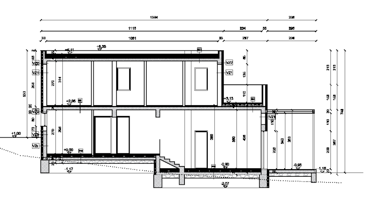
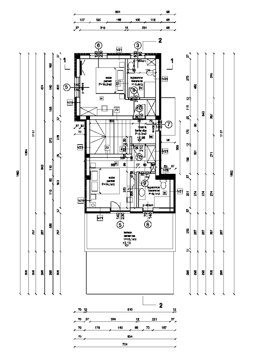
In vendita – Terreno edificabile con permesso nei pressi di Svetvinčenat In una posizione tranquilla e attraente nei pressi di Svetvinčenat, è in vendita un terreno edificabile con permesso di costruzione già rilasciato e con allacciamenti di acqua ed elettricità già presenti sul lotto. Il terreno ha una superficie di 526 m², forma regolare ed è orientato nord–sud, consentendo un utilizzo ottimale della luce naturale durante tutta la giornata. Si trova in una posizione particolarmente tranquilla, come ultimo lotto edificabile in una fila, circondato da poche proprietà, garantendo così privacy e splendide viste aperte sulla natura. Il progetto prevede la costruzione di una villa moderna su due livelli (piano terra + primo piano), con tre camere da letto e una piscina di 30 m². La superficie lorda totale è di 148,33 m², con una terrazza aggiuntiva di 16 m² – ideale per vivere gli spazi esterni. Questa proprietà rappresenta un’ottima opportunità per costruire una casa vacanze privata o come investimento per affitti turistici, in una delle zone più richieste dell’Istria.

Contatta venditore

Contatto: Rubin Real Estate
Immobile: Terreno - Vendita - SVETVINČENAT
RECID: 1272309

Agent

Agente responsabile di questa proprietà in SVETVINČENAT di 99.500 €

Danijela Kocijančić

Telefono: +385912682467
Cellulare: +385912682467
Lingue straniere: Engleski, Talijanski, Njemački

Fare una chiamata Contatta venditore

CONTATTO INSERZIONISTA

Contatando l'inserzionista per favore citare il codice dell'immobile: REC-1272309

Rubin Real Estate

Rubin Real Estate

Telefono: +385953536359
Cellulare: +385953536359

Maggiori informazioni sull'agenzia
Aggiungi proprietà
Right Details Banners
Roto Details Banners