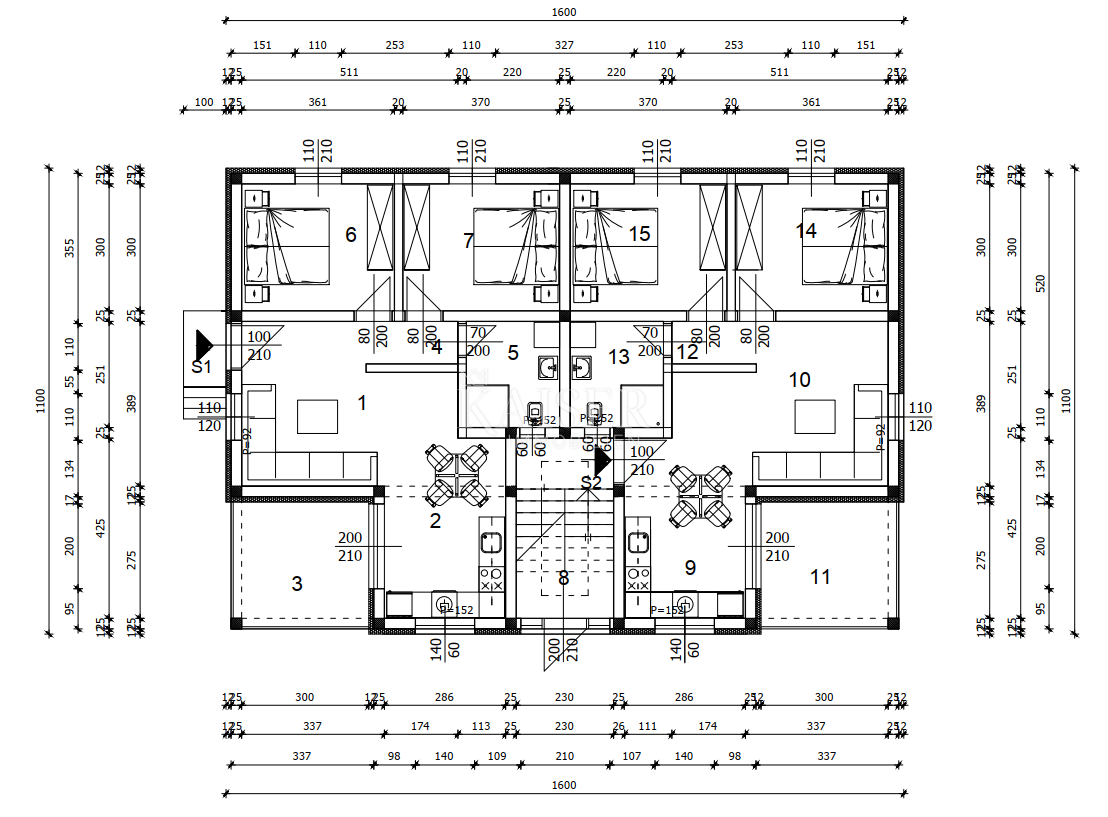
Sabunike, Privlaka - Terreno edificabile di grande interesse con progetto e contributi versati Kaiser Immobilien propone in vendita un terreno edificabile di grande interesse a Sabunike, nel comune di Privlaka, destinato alla costruzione di un edificio residenziale su un lotto di 690 m². L'immobile si trova in una posizione tranquilla e ricercata, nelle immediate vicinanze del mare, a soli 300 m circa, il che lo rende ideale sia per investitori che per acquirenti alla ricerca di un investimento sicuro e redditizio a lungo termine. È stata predisposta la documentazione completa del progetto per il terreno destinato alla costruzione di un edificio residenziale con 6 unità abitative completamente identiche. Il contributo per le utenze è stato interamente versato e l'allacciamento idrico è disponibile sul sito stesso, mentre gli allacciamenti elettrici e fognari sono in fase finale di realizzazione e si prevede che vengano effettuati quotidianamente, il che soddisfa tutti i prerequisiti per un avvio rapido e senza intoppi amministrativi. Il progetto prevede un edificio residenziale composto da sei appartamenti identici, funzionali e di qualità, ciascuno dei quali comprende: • cucina con sala da pranzo • soggiorno • corridoio • due camere da letto • bagno • terrazza La superficie netta utilizzabile di ogni appartamento è di 62 m². Sono stati progettati 6 posti auto accanto all'edificio residenziale, il che soddisfa pienamente le esigenze dei futuri inquilini. La posizione di Sabunike, nel comune di Privlaka, è nota per le sue lunghe spiagge sabbiose, la tranquillità e la vicinanza a tutti i servizi necessari. L'immobile gode di ottimi collegamenti di trasporto: Nin, Zaton, Vir e la città di Zara sono nelle vicinanze, il che ne aumenta ulteriormente l'attrattiva per l'affitto turistico o per l'acquisto di alloggi di qualità durante tutto l'anno. Questa proprietà rappresenta una rara opportunità di investire in un progetto già pronto in una delle località più ambite della Dalmazia settentrionale, senza ulteriori ritardi amministrativi e costi nascosti. La commissione dell'agenzia per l'acquirente è del 3% + IVA e viene corrisposta, in caso di acquisto di un immobile, alla stipula del primo atto giuridico. Contattateci con fiducia per maggiori informazioni e per fissare una visita. Tel: +385958122353 Email: kristina@kaiser-immobilien.hr
Agente responsabile di questa proprietà in SABUNIKE di 410.000 €
Kristina Rudan
Cellulare:
+385958122353, +385995677888
Contatando l'inserzionista per favore citare il codice dell'immobile: REC-1260943
Kaiser Immobilien
Telefono: 051823491
Maggiori informazioni sull'agenziaUltimi immobili del venditore
Immobili correlati