Top Banner
Ricerca alfabetica

181.940 € - VODICE Appartamento REC-ID 1252517

Galleria
  • Città: VODICE
  • Prezzo (€): 181.940 €
  • Superficie: 64 m2
  • Vani: 3
  • Parcheggio: 12 m2
  • Bagni: 1
  • Trasporti: -
  • Vicinanza mare: +
  • Distanza dal centro: 0 m
  • Distanza dal mare: 0 m

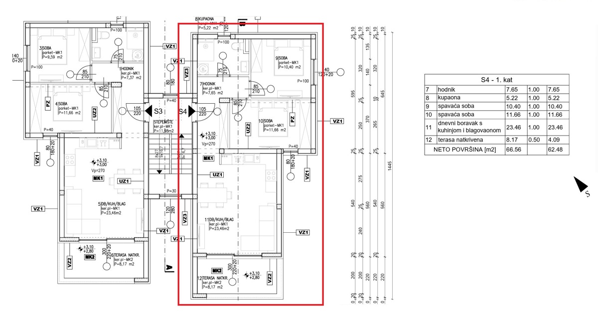
Vodice-**NUOVA COSTRUZIONE** in vendita appartamenti in un piccolo edificio residenziale. L’edificio dal design moderno è costruito con materiali di qualità e sarà dotato secondo gli ultimi standard costruttivi. Tra le dotazioni si evidenziano: facciata in polistirene espanso da 10 cm, infissi in PVC, vetro triplo, tapparelle con alzate elettriche, zanzariere su tutte le aperture, riscaldamento a pavimento elettrico nel bagno e nel soggiorno, climatizzatori (riscaldamento/raffreddamento) nel soggiorno e nelle camere da letto... L’edificio con un totale di 4 unità abitative si trova in una zona tranquilla, circondata da case familiari e piccoli edifici residenziali, a circa 1400 m dal centro di Vodice e a circa 1800 m dalla spiaggia più vicina. Attualmente è in costruzione e la data prevista per il completamento è l’estate 2026. Sono ancora disponibili in vendita gli appartamenti S2 al piano terra e S4 al piano superiore. APPARTAMENTO S4 SUPERFICIE (calcolata secondo coefficienti) – TOTALE 64,98 m2 - Superficie abitabile: 58,39 m2 - Terrazza coperta: 4,09 m2 (superficie reale 8,17 m2) - Posto auto: 2,50 m2 (superficie reale 12,5 m2) DISTRIBUZIONE DEI LOCALI - ingresso con corridoio - bagno - 2 camere da letto - soggiorno - cucina e sala da pranzo - uscita sulla terrazza - L’appartamento ha una disposizione funzionale e moderna, con particolare attenzione agli spazi giorno e all’area esterna – perfetto per vivere tutto l’anno.

Contatta venditore

Contatto: Naš Dom
Immobile: Appartamento - Vendita - VODICE
RECID: 1252517

Agent

Agente responsabile di questa proprietà in VODICE di 181.940 €

Hrvoje Zurak

Telefono: +385917235581
Cellulare: +385917235581
Lingue straniere: Engleski jezik

Fare una chiamata Contatta venditore

CONTATTO INSERZIONISTA

Contatando l'inserzionista per favore citare il codice dell'immobile: REC-1252517

Naš Dom

Naš Dom

Telefono: 00385917235581

Maggiori informazioni sull'agenzia
Aggiungi proprietà
Right Details Banners
Roto Details Banners