Top Banner
Ricerca alfabetica

200.000 € - POVLJANA Appartamento REC-ID 1249601

Galleria
  • Città: POVLJANA
  • Prezzo (€): 200.000 €
  • Superficie: 57 m2
  • Vani: 2
  • Parcheggio: 12 m2
  • Bagni: 1
  • Trasporti: +
  • Vicinanza mare: -
  • Distanza dal centro: 0 m
  • Distanza dal mare: 0 m

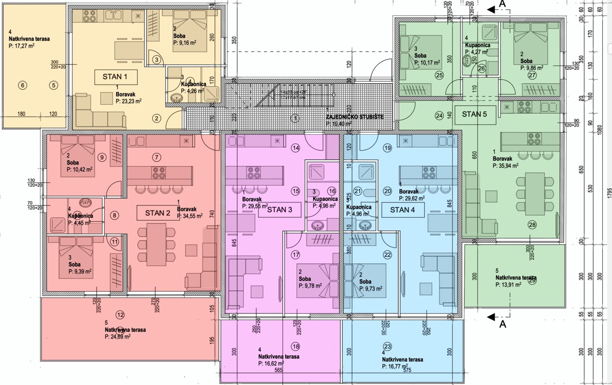
Sull'isola di Pag, nel tranquillo e affascinante paese di Povljana, si trova un moderno edificio residenziale con appartamenti, composto da un totale di 15 unità abitative. La posizione è ideale per godere dello stile di vita mediterraneo. L’edificio è situato in un’ottima posizione, a soli 300 metri dal mare e 500 metri dalla spiaggia attrezzata, offrendo un perfetto equilibrio tra comfort, eleganza e bellezze naturali. Costruzione e materiali di qualità L’immobile è costruito con particolare attenzione alla qualità, alla durabilità e al comfort abitativo. La struttura è in cemento armato, con eccezionale stabilità statica, mentre le pareti interne divisorie sono realizzate in blocchi di laterizio. La facciata è isolata termicamente e impermeabilizzata con 10 cm di polistirolo, garantendo un’elevata efficienza energetica. Il riscaldamento e il raffrescamento sono assicurati da condizionatori d’aria Bosch in ogni stanza. Gli appartamenti sono dotati di porte d’ingresso antieffrazione e antincendio, infissi in PVC a doppio vetro e pavimenti in ceramica. La classe energetica prevista è A. Posizione attraente L’appartamento si trova in una posizione estremamente favorevole e tranquilla, a pochi minuti a piedi dal mare e dal centro di Povljana. Dall’appartamento si gode una vista sul mare, sull’isola di Vir e sulla parte più ampia del paese. Povljana è un luogo accogliente e orientato alla famiglia che offre tutto il necessario per un soggiorno di qualità e la vita quotidiana, inclusi ufficio postale, ambulatorio, scuola, negozi, panetterie, pasticcerie e un porto turistico per imbarcazioni di piccole dimensioni. Povljana come fusione di magia mediterranea e comfort moderno Povljana è un pittoresco paese costiero sull’isola di Pag, noto per il mare cristallino e le belle spiagge di ciottoli e sabbia. Il paese incanta con la combinazione di architettura tradizionale dalmata e uno stile di vita contemporaneo. Oltre a una ricca offerta gastronomica, con particolare rilievo per il formaggio di Pag e l’agnello di alta qualità, Povljana offre numerose opportunità per il relax e la ricreazione. Gli amanti della natura possono esplorare calette nascoste e spiagge incontaminate, ideali per fuggire dalla folla e godere di completa tranquillità. L’isola di Pag è ottimamente collegata alla terraferma. Le linee dei traghetti operano per tutto il giorno, mentre il ponte di Pag consente l’accesso in auto senza traghetto. L’aeroporto di Zemunik a Zara dista circa un’ora di guida, e linee veloci di traghetti collegano Novalja con Fiume, Rab e Lussino. La proprietà è regolare e libera da vincoli. Questo immobile rappresenta un’eccellente opportunità per una vita confortevole, una vacanza o un investimento a lungo termine, grazie alla costruzione di qualità, alla posizione attraente e alla vicinanza al mare. DESCRIZIONE DELL’APPARTAMENTO: Appartamento S4 - piano terra - superficie abitabile 44,31 m2 (1 camera da letto + bagno) + terrazza coperta (16,77 m2 - sud) + giardino (28,07 m2) + posto auto esterno PM04, superficie netta totale 57,93 m2 = 200.000 EUR Data di consegna: 06/2026 L’acquirente NON paga la commissione d’agenzia Per ulteriori informazioni e per concordare una visita, non esitate a contattarci. SAN PATRIK GARANZIA PREMIUM L’immobile è rappresentato da San Patrik, un’agenzia boutique che offre consulenza qualificata e un approccio personalizzato a ogni acquirente. Il nostro ruolo è garantire documentazione verificata, piena sicurezza legale e un processo di acquisto trasparente, con accesso a tutte le informazioni essenziali prima della decisione finale.

Contatta venditore

Contatto: San Patrik nekretnine
Immobile: Appartamento - Vendita - POVLJANA
RECID: 1249601

Aggiungi proprietà
Right Details Banners
Roto Details Banners