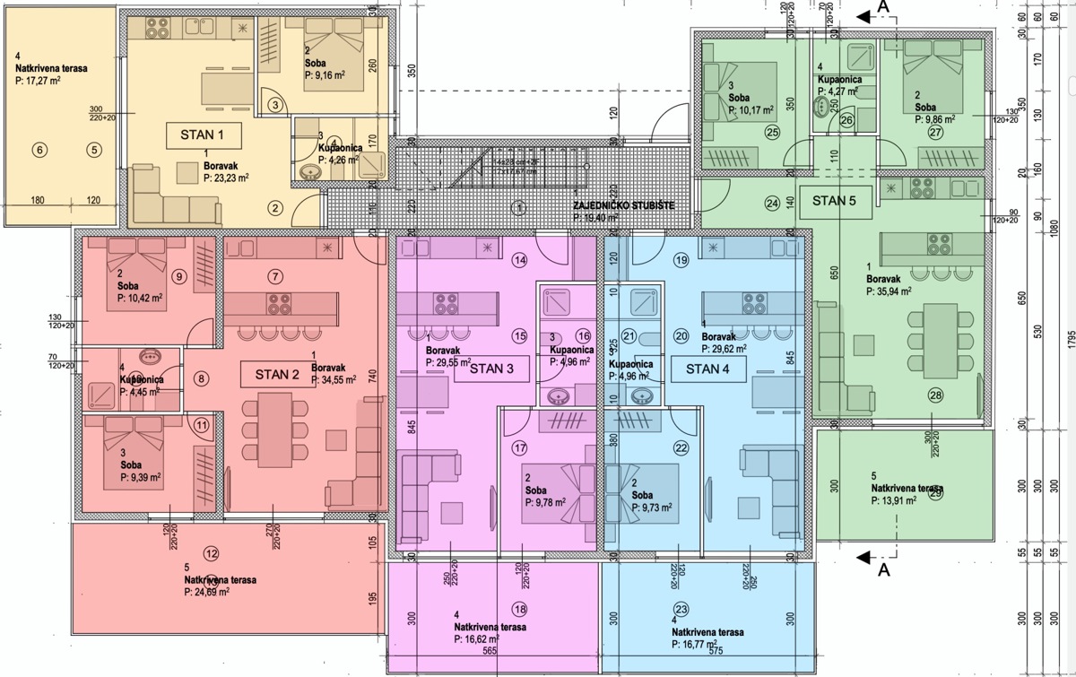
Sull'isola di Pag, nel tranquillo e affascinante paese di Povljana, si trova un moderno edificio residenziale con un totale di 15 appartamenti. La posizione è ideale per godere dello stile di vita mediterraneo. L'edificio è situato in una posizione eccellente, a soli 300 metri dal mare e 500 metri dalla spiaggia attrezzata, offrendo un perfetto equilibrio tra comfort, eleganza e bellezze naturali. Costruzione e materiali di qualità L'immobile è costruito con particolare attenzione alla qualità, alla durabilità e al comfort abitativo. La struttura è in cemento armato, di eccezionale stabilità statica, mentre i muri divisori interni sono realizzati in blocchi di laterizio. La facciata è isolata termicamente e impermeabilizzata con 10 cm di polistirene, garantendo un’elevata efficienza energetica. Il riscaldamento e il raffreddamento sono assicurati da condizionatori Bosch in ogni ambiente. Gli appartamenti sono dotati di porte d’ingresso antieffrazione e antincendio, infissi in PVC a doppio vetro e pavimenti in ceramica. La classe energetica prevista è A. Posizione attraente L’appartamento si trova in una posizione estremamente favorevole e tranquilla, a pochi minuti a piedi dal mare e dal centro di Povljana. Dall’appartamento si gode una vista sul mare, sull’isola di Vir e sulla parte più ampia del paese. Povljana è un luogo piacevole e orientato alla famiglia, che offre tutto il necessario per un soggiorno di qualità e la vita quotidiana, inclusi ufficio postale, ambulatorio, scuola, negozi, panetterie, pasticcerie e un porto turistico per imbarcazioni di piccole dimensioni. Povljana come fusione di magia mediterranea e comfort moderno Povljana è un pittoresco paese costiero sull’isola di Pag, noto per il mare cristallino e le belle spiagge di ciottoli e sabbia. Il paese incanta con la combinazione di architettura tradizionale dalmata e uno stile di vita contemporaneo. Oltre a un ricco assortimento gastronomico, con particolare rilievo per il formaggio di Pag e l’agnello di alta qualità, Povljana offre numerose opportunità per relax e attività ricreative. Gli amanti della natura possono esplorare calette nascoste e spiagge incontaminate, ideali per fuggire dalla folla e godere di completa tranquillità. L’isola di Pag è ottimamente collegata alla terraferma. Le linee dei traghetti operano per tutto il giorno, mentre il ponte di Pag consente l’accesso in auto senza traghetto. L’aeroporto di Zemunik a Zara dista circa un’ora di guida, e linee veloci di traghetti collegano Novalja con Fiume, Rab e Lussino. La proprietà è regolare e libera da vincoli. Questo immobile rappresenta un’ottima opportunità per una vita confortevole, vacanze o un investimento a lungo termine, grazie alla costruzione di qualità, alla posizione attraente e alla vicinanza al mare. DESCRIZIONE DELL’APPARTAMENTO: Appartamento S10 - 1° piano - superficie abitabile 60,24 m2 (2 camere da letto + bagno) + terrazza coperta (13,91 m2 - SE) + posto auto esterno PM10, superficie netta totale 69,63 m2 = 220.000 EUR Data di consegna: 06/2026 L’acquirente NON paga commissioni d’agenzia Per ulteriori informazioni e per fissare una visita, non esitate a contattarci. SAN PATRIK GARANZIA PREMIUM L’immobile è rappresentato da San Patrik, un’agenzia boutique che offre consulenza qualificata e un approccio personalizzato a ogni acquirente. Il nostro ruolo è garantire documentazione verificata, piena sicurezza legale e un processo di acquisto trasparente, con accesso a tutte le informazioni essenziali prima della decisione finale.
Agente responsabile di questa proprietà in POVLJANA di 220.000 €
Ivan Varat
Telefono:
+385(99)2172314
Contatando l'inserzionista per favore citare il codice dell'immobile: REC-1249597
San Patrik nekretnine
Telefono: 0992172314
Maggiori informazioni sull'agenziaUltimi immobili del venditore
Immobili correlati