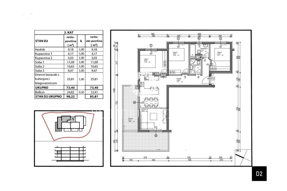
Istria, zona di Parenzo (Poreč) In vendita un appartamento moderno situato al 2° piano di un nuovo edificio residenziale con ascensore, a soli 1 km dal mare, in una località dotata di tutti i servizi necessari per una vita confortevole e di qualità. L’appartamento ha una superficie netta totale di 85,81 m² ed è composto da ingresso, tre camere da letto, due bagni, cucina con zona pranzo e soggiorno con accesso a una ampia terrazza, che garantisce ulteriore comfort abitativo. Il riscaldamento e il raffrescamento sono garantiti da climatizzatori, mentre nel soggiorno, nella zona pranzo, in cucina e nei bagni è presente il riscaldamento a pavimento elettrico. Completano la proprietà un ripostiglio e un posto auto. Soluzione ideale per risolvere le esigenze abitative o come investimento a lungo termine.La visione dell'immobile è possibile con un accordo di mediazione firmato, che costituisce la base per ulteriori azioni in relazione alla vendita e alla commissione ai sensi della legge sulla mediazione nelle transazioni immobiliari. In caso di vendita la commissione di agenzia ammonta al 3% + IVA e viene addebitata al momento della conclusione del precontratto/contratto di vendita.
Agente responsabile di questa proprietà in POREČ di 300.350 €
Ivica Barić
Telefono:
00385989946041
Cellulare:
00385989946041
Lingue straniere:
njemački,engleski,talijanski
Contatando l'inserzionista per favore citare il codice dell'immobile: REC-1244907
PARENTIUM PREMIUM REAL ESTATE
Telefono: 00385953700354
Cellulare:
00385953700354
Ultimi immobili del venditore
Immobili correlati