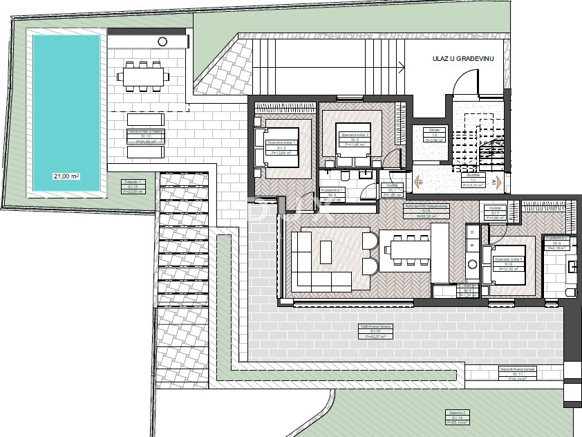
ABBAZIA, IČIĆI - appartamento di lusso con piscina a 100 m dal mare e dal resort Mariott, garage Vi presentiamo un raro progetto di nuova costruzione situato a pochi passi dal mare e dal famoso hotel Mariott di Ičići. Si tratta di un edificio con 6 appartamenti di lusso e una villa indipendente con piscina. L'appartamento S1 si trova al piano terra e ha una superficie di 151 m², di cui 85 m² di parti chiuse e 59 m² di parti aperte. È composto da: 2 disimpegni, tre camere da letto, una delle quali con bagno privato, tre bagni, cucina con sala da pranzo e soggiorno e ripostiglio. L'appartamento dispone inoltre di una terrazza e di una piscina privata. L'edificio è dotato di dotazioni di alta qualità: - pompa di calore e riscaldamento a pavimento - impianto di climatizzazione multisplit separato - infissi in alluminio con profili sottili e tapparelle elettriche - ceramiche e parquet di prima qualità - sanitari e accessori di design - ascensore - facciata ventilata in pietra come decorazione esterna - rigogliosa vegetazione intorno all'edificio L'appartamento dispone inoltre di due posti auto all'interno del garage. L'appartamento dispone inoltre di un ripostiglio, anch'esso situato nel garage. È importante notare che il progetto si trova in posizione elevata, proprio sulla strada sopra la spiaggia, il che significa che è possibile raggiungere il mare a piedi in 60 secondi e che si è anche molto vicini al futuro hotel Mariott a 5 stelle. Inoltre, il centro di Abbazia è raggiungibile in 5 minuti di auto. Questa è un'ottima opportunità per acquistare un appartamento in un nuovo edificio nella zona di Riviera, forse il nuovo edificio più vicino al mare di Abbazia al momento. Per organizzare una visita dell'immobile, contattate un agente di fiducia - è possibile una consulenza in tedesco. Gentili clienti, la commissione di agenzia viene addebitata in conformità con i Termini e Condizioni Generali: www.dux-nekretnine.hr/opci-uvjeti-poslovanja
Contatando l'inserzionista per favore citare il codice dell'immobile: REC-1235089
DUX Nekretnine
Telefono: 051518174
Maggiori informazioni sull'agenziaUltimi immobili del venditore
Immobili correlati