Top Banner
Ricerca alfabetica

318.000 € - POREČ Appartamento REC-ID 1228772

Galleria
  • Città: POREČ
  • Prezzo (€): 318.000 €
  • Superficie: 82 m2
  • Vani: 3
  • Vista: mare
  • Bagni: 1
  • Trasporti: -
  • Vicinanza mare: -
  • Distanza dal centro: 6 m
  • Distanza dal mare: 6000 m

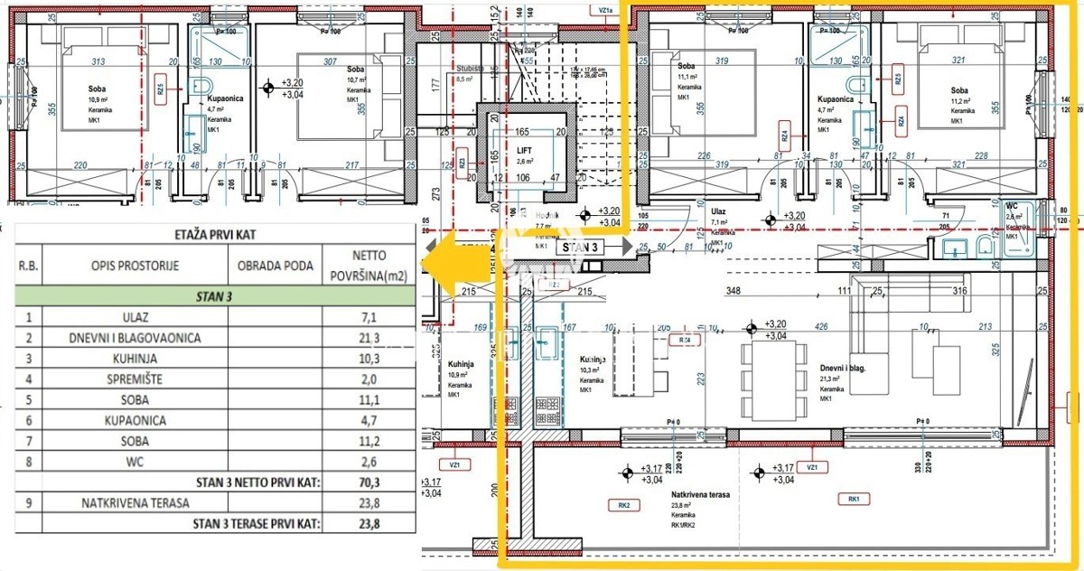
Istria, dintorni di Parenzo In vendita appartamento con superficie abitabile netta di 70,3 m² più terrazza coperta di 23,8 m² netti, situato al 1° piano di un edificio residenziale di alta qualità con ascensore, attualmente in costruzione. L’edificio moderno, composto da sei unità abitative in totale, si trova in una zona tranquilla non lontano da Parenzo e dal mare. L’appartamento è composto da ingresso, WC, due ampie camere da letto, bagno e un soggiorno con cucina e sala da pranzo in open space, con accesso a un’ampia terrazza coperta con una splendida vista panoramica sui dintorni e sul mare. Sulla terrazza saranno predisposti allacci per elettricità, acqua e scarico – ideali per una cucina estiva o una lavanderia, a scelta dell’acquirente. All’appartamento appartiene anche un ripostiglio situato al piano terra dell’edificio. Il riscaldamento e il raffreddamento sono garantiti da tre condizionatori d’aria collegati a un’unica unità esterna, mentre in tutto l’appartamento è installato il riscaldamento a pavimento elettrico. Gli infissi saranno in PVC con vetri tripli e tapparelle, e le finestre saranno dotate di zanzariere. L’isolamento termico sarà realizzato con 10 cm di polistirene combinato con lana di vetro, garantendo alta efficienza energetica e comfort durante tutto l’anno. In questa fase di costruzione, l’acquirente può scegliere le piastrelle e i pavimenti fino al prezzo di 50 €/m². L’appartamento dispone di due posti auto davanti all’edificio, con possibilità di acquistare un ulteriore ripostiglio al piano terra. L’acquirente è esente dal pagamento dell’imposta sul trasferimento immobiliare. Il completamento dei lavori è previsto per l’autunno 2026. Un’occasione da non perdere – ideale per vivere comodamente o come investimento intelligente!La visione dell'immobile è possibile con un accordo di mediazione firmato, che costituisce la base per ulteriori azioni in relazione alla vendita e alla commissione ai sensi della legge sulla mediazione nelle transazioni immobiliari. In caso di vendita la commissione di agenzia ammonta al 3% + IVA e viene addebitata al momento della conclusione del precontratto/contratto di vendita.

Contatta venditore

Contatto: PARENTIUM PREMIUM REAL ESTATE
Immobile: Appartamento - Vendita - POREČ
RECID: 1228772

Agent

Agente responsabile di questa proprietà in POREČ di 318.000 €

Ivica Barić

Telefono: 00385989946041
Cellulare: 00385989946041
Lingue straniere: njemački,engleski,talijanski

Fare una chiamata Contatta venditore

CONTATTO INSERZIONISTA

Contatando l'inserzionista per favore citare il codice dell'immobile: REC-1228772

PARENTIUM PREMIUM REAL ESTATE

PARENTIUM PREMIUM REAL ESTATE

Telefono: 00385953700354
Cellulare: 00385953700354

Maggiori informazioni sull'agenzia
Aggiungi proprietà
Right Details Banners
Roto Details Banners