Top Banner
Ricerca alfabetica

Trattativa riservata - IČIĆI Casa REC-ID 1227497

Galleria
  • Città: IČIĆI
  • Prezzo: Trattativa riservata
  • Superficie: 241 m2
  • Vani: 4
  • Parcheggio: 1 m2
  • Vista: mare
  • Terra: 433 m2
  • Bagni: 4
  • Trasporti: -
  • Vicinanza mare: -
  • Distanza dal centro: 0 m
  • Distanza dal mare: 0 m

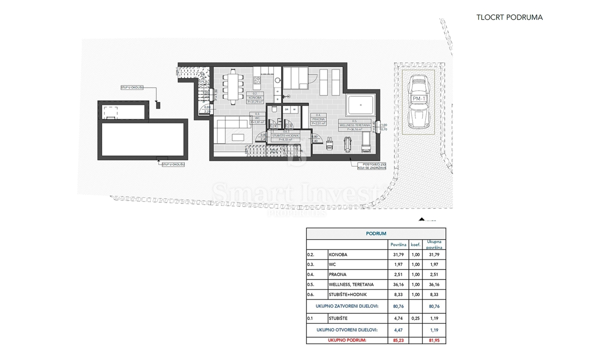
IČIĆI VILLA ESCLUSIVA CON PISCINA, BENESSERE E VISTA MARE! In vendita una villa moderna ed esclusiva situata in una posizione estremamente attraente, vicino al mare, alle spiagge e al porto turistico ACI, con vista sul mare. Questa proprietà di lusso trasuda design contemporaneo ed eleganza, ed è realizzata con materiali di altissima qualità che garantiscono durata e comfort. La villa è stata progettata per offrire il perfetto connubio tra lusso, privacy e comfort, definendo standard elevati per la vita moderna. CARATTERISTICHE PRINCIPALI: • 3 camere da letto, 3 bagni, 1 WC • area benessere con sauna e palestra • taverna con cucina e zona relax • 2 posti auto • superficie netta totale della villa: 337,87 m² (con coefficienti 241,13 m²) • superficie terreno: 433 m² Al piano terra si trovano un ingresso, un ampio soggiorno open space con cucina e sala da pranzo, che si estende verso l'ampia terrazza con piscina. Su questo piano si trovano anche una confortevole camera da letto, un bagno, una dispensa e un ripostiglio con ingresso indipendente dal giardino. Al primo piano si trovano un disimpegno e due ampie camere da letto, ciascuna con il proprio bagno e accesso a una terrazza privata. Al piano seminterrato si trova un angolo relax e convivialità: taverna con cucina, palestra e area benessere con sauna e doccia, WC e lavanderia. Questo piano è collegato alla casa tramite una scala interna e dispone inoltre di un ingresso indipendente tramite scale dalla terrazza al piano terra della villa, che offre un'eccellente connessione tra gli spazi esterni e quelli interni destinati al relax. Il giardino paesaggistico garantisce la massima privacy e l'ampia terrazza con piscina è il luogo ideale per rilassarsi e godersi la vita. L'eccellente micro-ubicazione, a pochi minuti a piedi dalle spiagge e dal porto turistico, rende questa villa la scelta perfetta per chi cerca una lussuosa casa al mare o un prestigioso investimento locativo. PREZZO Il prezzo è comprensivo di IVA, l'acquirente è esente dal pagamento dell'imposta sugli immobili. In caso di acquisto da una società registrata in Croazia, è possibile ottenere il rimborso completo dell'IVA dopo l'acquisto. Per ulteriori informazioni e per un appuntamento di visita, chiamare il numero: +385/99/320-0008

Contatta venditore

Contatto: Smart Invest Properties
Immobile: Casa - Vendita - IČIĆI
RECID: 1227497

Aggiungi proprietà
Right Details Banners
Roto Details Banners