
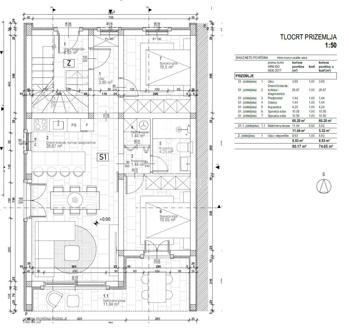
Istria, Rovigno, dintorni A soli dieci minuti di auto da Rovigno, in una zona tranquilla e piacevole, è in vendita un appartamento al piano terra in un nuovo edificio residenziale. La posizione offre la perfetta combinazione tra la vicinanza a una delle città più belle dell’Istria e la pace di un ambiente residenziale sereno. L’edificio, il primo di quattro previsti, è composto da due appartamenti: uno al piano terra e uno al primo piano. L’unità in vendita dispone di una superficie abitabile di 60 m², una terrazza coperta di 11 m² e un giardino privato di circa 20 m², perfetto per creare un’oasi verde personale. L’appartamento dispone inoltre di un posto auto. La costruzione è in corso e la consegna è prevista durante la stagione 2026. Poiché la vendita avviene tramite società, l’acquirente è esentato dal pagamento dell’imposta di trasferimento immobiliare. Un’opportunità ideale per chi cerca una nuova casa vicino a Rovigno o per investitori che desiderano un immobile di qualità in una posizione ricercata. Per ulteriori informazioni e la presentazione del progetto, non esitate a contattarci.
Contatando l'inserzionista per favore citare il codice dell'immobile: REC-1224327
DIAMOND Real Estate
Telefono: +38552210824
Maggiori informazioni sull'agenziaUltimi immobili del venditore
Immobili correlati