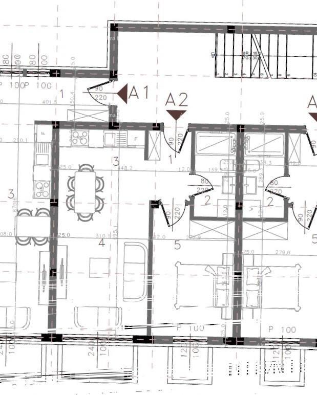
Квартира в новом современном здании в Медулине, в стадии строительства. Отличное месторасположение: * Медулин — один из самых популярных городов на юге Истрии, * до моря — 300 м!!! * центр Медулина всего в нескольких минутах езды на автомобиле, * рядом находятся набережная, рестораны, магазины, * асфальтированная дорога, парковка поблизости. КВАРТИРА - A2 (первый этаж, 1 спальня) Коридор: 3,62 м2 Ванная комната: 4,07 м2 Кухня + столовая: 8,30 м2 Гостиная: 12,77 м2 Спальня: 11,56 м2 Общая чистая площадь: 40,32 м2 К недвижимости прилагается парковочное место, включенное в цену. Морской воздух и климат: Средиземноморский климат с теплыми летами и мягкими зимами — идеально для постоянного проживания или отдыха. Для получения дополнительной информации, пожалуйста, свяжитесь с: Азра Вальевац + 385 91 611 5706 +385 98 420 885 azra@almadominvest.com
Агент, отвечающий за эту недвижимость в MEDULIN с ценой 219.452 €
Jelena Maksimović
Телефон:
+38552213332
Мобильный телефон:
+38598323264
Иностранные языки:
Engleski Talijanski Ruski
При ответе на объявление обязательно укажите шифр объекта недвижимости: REC-1260190
Alma Dom - Real Estate
Телефон: +385916115706
Мобильный телефон:
+385 91 6115706 +38598420885 +385991962863
Последние объекты
Связанные объекты недвижимости