Top Banner
Поиск по алфавиту

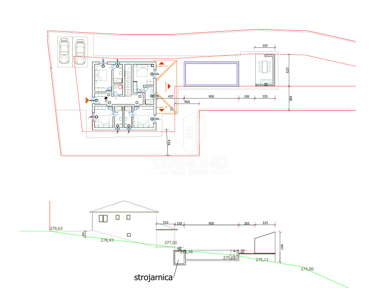
380.000 € - VODNJAN Дом REC-ID 1259187

Галерея
  • Город: VODNJAN
  • Цена (€): 380.000 €
  • Район: 150 m2
  • Комнат: 6
  • Парковка: 1 m2
  • Участок: 950 m2
  • Ванных комнат: 5
  • Транспорт: -
  • Близость моря: -
  • Расстояние до центра: 0 m
  • Расстояние до моря: 0 m

Связаться с продавцом

Kонтакт: DIAMOND Real Estate
Запрос на недвижимость: Дом - Продается - VODNJAN
RECID: 1259187

КОНТАКТ РЕКЛАМОДАТЕЛЯ

При ответе на объявление обязательно укажите шифр объекта недвижимости: REC-1259187

DIAMOND Real Estate

DIAMOND Real Estate

Телефон: +38552210824

Подробнее об агентстве
Добавить недвижимость
Right Details Banners
Roto Details Banners