Top Banner
Поиск по алфавиту

884.100 € - KOSTRENA Квартира REC-ID 1249853

Галерея
  • Город: KOSTRENA
  • Цена (€): 884.100 €
  • Район: 210 m2
  • Комнат: 5
  • Вид: море
  • Участок: 350 m2
  • Ванных комнат: 3
  • Транспорт: +
  • Близость моря: -
  • Расстояние до центра: 0 m
  • Расстояние до моря: 0 m

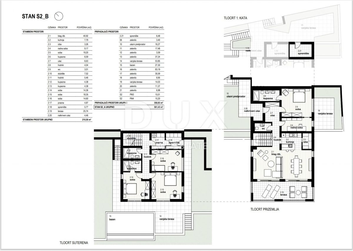
РИЕКА, КОСТРЕНА - эксклюзивная двухэтажная квартира 210,50 м2, новое здание с прекрасным видом на море и бассейном + сад 350,93 м2 - S2-B Мы предлагаем недвижимость, которая предлагает вам современный дизайн и элегантность, комфорт и первоклассное оборудование, и расположена в красивом, тихом месте недалеко от общественного транспорта, школ, детских садов, торговых центров и в десяти минутах езды от Риеки. Комплекс из 4 жилых зданий с общим количеством 8 квартир расположен к северу от Адриатического шоссе в районе «Зелена Кострена», откуда открывается прекрасный вид на весь залив Кварнер. В непосредственной близости находятся 10 километров ухоженных пешеходных, велосипедных и фитнес-маршрутов, которые проходят через самые высокие части Кострены от вершины Солин до вершины Шопаль. Подъезд к домам организован с верхней дороги, где планируется усовершенствовать и расширить существующую дорогу. В каждом доме имеется четыре открытых парковочных места или два парковочных места на жилую единицу. Каждый дом состоит из двух квартир. Квартиры на двух верхних участках расположены друг над другом, а квартиры на двух нижних участках — рядом друг с другом. Каждая квартира имеет часть сада. ДОМ B квартира S2 - B: ЖИЛЫЕ ПОМЕЩЕНИЯ: - гостиная / столовая 40,92 - кухня 7,79 - кладовая 3,26 - кабинет 9,17 - комната 19,20 - ванная 6,59 - прихожая 6,63 - коридор 4,04 - туалет 3,01 - лестница 7,52 - коридор 5,46 - ванная 4,38 - ванная 4,38 - комната 14,36 - комната 18,35 - комната 14,60 - прачечная 4,87 - кладовая 5,77 - терраса 25,74 - крытый вход 4,46 ЖИЛЫЕ ПОМЕЩЕНИЯ ВСЕГО: 210,50 м² СОТРУДНИЧЕСКИЕ ПОМЕЩЕНИЯ: - кладовая 6,48 - зеленая зона 3,40 - прихожая 16,27 - зеленая зона 17,48 - зелень 3,59 - зелень 37,24 - открытая терраса 53,85 - бассейн 27,30 - зелень 83,19 - зелень 30,59 - зелень 8,95 - открытая терраса 14,03 - зелень 11,37 - зелень 6,98 - парковочное место 3 15,01 - парковочное место 4 15,20 ВЫДЕЛЕННЫЕ МЕСТА ВСЕГО: 350,93 м² КВАРТИРА S2-B ВСЕГО: 561,43 м² Эти роскошные апартаменты спроектированы для максимального комфорта. ОБОРУДОВАНИЕ: Дом, в котором расположена квартира, добротно построен и роскошно оборудован, все встроенные материалы, напольные и настенные покрытия соответствуют самым высоким стандартам. - Фасадная изоляция толщиной 10 см - теплые полы - тепловые насосы - высококачественные алюминиевые столярные изделия. Квартира имеет собственный сад и 2 парковочных места. ЦЕНА: Указанная цена относится к полностью готовому объекту «под ключ», без мебели. Цена включает НДС, покупатель освобожден от уплаты налога на недвижимость. В случае покупки у компании, зарегистрированной в Хорватии, возможен полный возврат НДС после продажи. Чистая и аккуратная недвижимость. Безусловно, это прекрасная недвижимость для роскошной семейной жизни, но также подходящая в качестве инвестиции в элитный туризм. УНИКАЛЬНАЯ НЕДВИЖИМОСТЬ, ОПРЕДЕЛЕННО СТОЯЩАЯ ВАШЕГО ВНИМАНИЯ В ПРЕКРАСНОМ МЕСТЕ!!! КОСТРЕНА Кострена — старинный популярный приморский город, впервые упомянутый в начале XV века. Первую муниципальную независимость он обрел в 1874 году, но сохранял ее очень недолго, всего два года. Он разделен на две части: Св. Люсия и Св. Варвара, по названиям двух церквей, существующих в этом районе. Кострена расположена в непосредственной близости от города Риека, между заливом Мартиншчица и заливом Бакар. Полуостров Кострена имеет длину около 10 километров и плавно спускается к побережью. Вдоль всего побережья простираются прекрасные пляжи, которые летом посещают тысячи любителей купания. Самые известные и посещаемые — в заливе Журково, за ним следуют Смоквиново, Свежань, Спужвина, Подражица, Новая Вода и Перило. Кострена состоит из примерно двадцати поселений, многие из которых были названы в честь семей, и сегодня наиболее населенными являются Врх Мартинщице, Главани, Св. Луция, Рожманичи, Доричичи и Павеки. Характерная карстовая местность со средиземноморской растительностью и знаменитой Костреной громачей, а также мягкий климат, который иногда сменяется сильными порывами ветра бора, являются характеристиками этого региона. Уважаемые клиенты, комиссия агентства взимается в соответствии с Общими положениями и условиями: www.dux-nekretnine.hr/opci-uvjeti-poslovanja

Связаться с продавцом

Kонтакт: DUX Nekretnine
Запрос на недвижимость: Квартира - Продается - KOSTRENA
RECID: 1249853

КОНТАКТ РЕКЛАМОДАТЕЛЯ

При ответе на объявление обязательно укажите шифр объекта недвижимости: REC-1249853

DUX Nekretnine

DUX Nekretnine

Телефон: 051518174

Подробнее об агентстве
Добавить недвижимость
Right Details Banners
Roto Details Banners