Top Banner
Поиск по алфавиту

316.350 € - LABIN Квартира REC-ID 1238757

Галерея
  • Город: LABIN
  • Цена (€): 316.350 €
  • Район: 85 m2
  • Комнат: 3
  • Ванных комнат: 2
  • Транспорт: +
  • Близость моря: -
  • Расстояние до центра: 500 m
  • Расстояние до моря: 5000 m

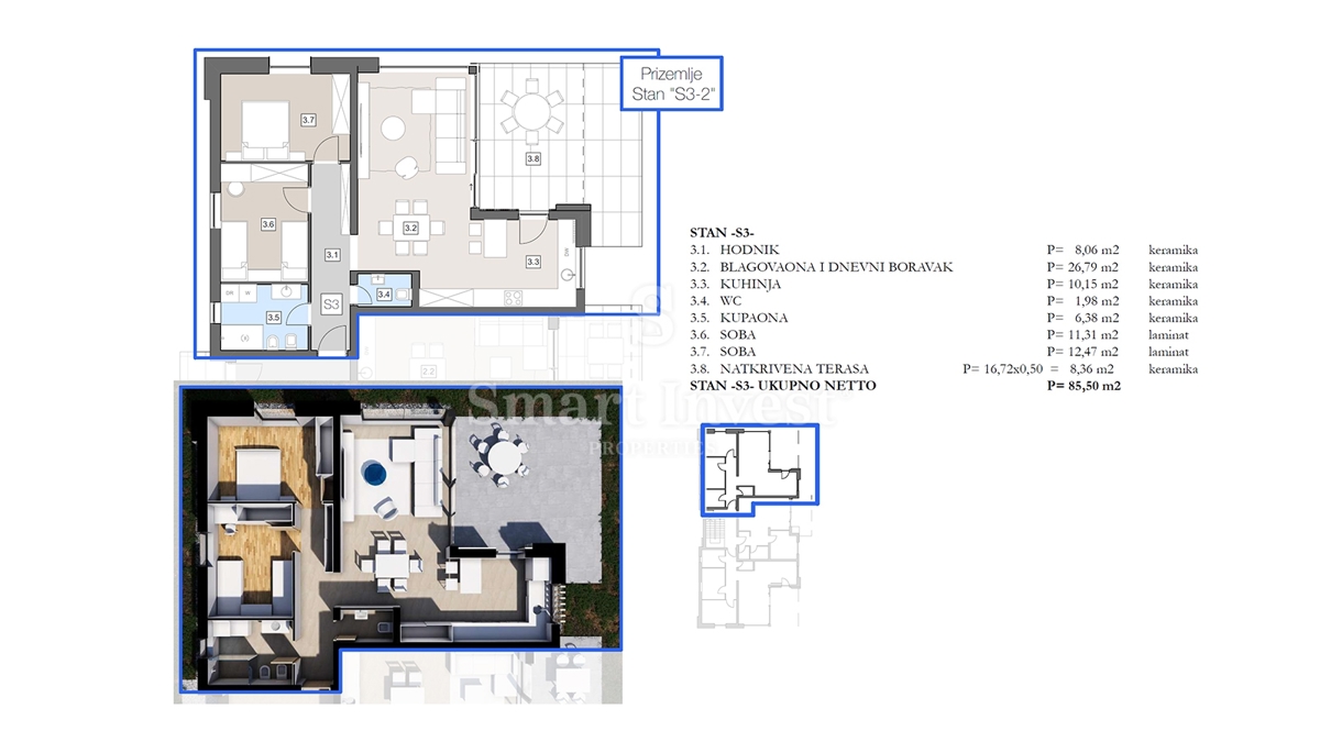
ИСТРИЯ - ЛАБИН КВАРТИРА С ТЕРРАСОЙ В СОВРЕМЕННОЙ НОВОСТРОЙКЕ В непосредственной близости от центра Лабина строится современный жилой комплекс, с восемью продуманно спроектированными квартирами. При строительстве используются высококачественные материалы, обеспечивающие долгосрочную безопасность и комфорт, а планировка комнат на каждом этаже тщательно продумана для максимальной функциональности и комфорта жильцов. КВАРТИРА S3-2 • Этаж: первый • 2 спальни, 1 ванная комната, 1 туалет • Общая нетто площадь квартиры (с коэффициентом): 85,50 м² • Внутренняя площадь квартиры: 77,14 м² • Крытая терраса: 16,72 м² (коэффициент 0,5) В вашем распоряжении прихожая, две спальни, ванная комната, дополнительный гостевой туалет и просторная гостиная открытой планировки с кухней и столовой, которая выходит на крытую террасу. Есть возможность приобрести сад за дополнительную плату. Парковочные места приобретаются отдельно, согласно коэффициенту расчета. Эта квартира, расположенная в пешей доступности от всех необходимых удобств, представляет собой отличную возможность для комфортной семейной жизни, а также для сдачи в туристическую аренду. Планируемое завершение строительства – июнь 2027 года, сдача – декабрь 2027 года. Забронируйте свою квартиру для проживания, отдыха или инвестиции уже сейчас, так как квартиры в новостройках продаются заранее. ЦЕНА Указанная цена относится к полностью готовой квартире «под ключ», без мебели. Цена включает НДС, покупатель освобожден от уплаты налога на недвижимость. В случае покупки через компанию, зарегистрированную в Хорватии, возможен полный возврат НДС после покупки. Для получения дополнительной информации и записи на просмотр звоните по телефону: +385/99/320-0011

Связаться с продавцом

Kонтакт: Smart Invest Properties
Запрос на недвижимость: Квартира - Продается - LABIN
RECID: 1238757

Agent

Агент, отвечающий за эту недвижимость в LABIN с ценой 316.350 €

Danijela Urlić - PODRUČJE ISTRA

Телефон: 099/320-0011
Мобильный телефон: +385/(0)99/320-0011

Сделать звонок Связаться с продавцом

КОНТАКТ РЕКЛАМОДАТЕЛЯ

При ответе на объявление обязательно укажите шифр объекта недвижимости: REC-1238757

Smart Invest Properties

Smart Invest Properties

Телефон: +385/99/320-0008
Мобильный телефон: +385/99/320-0008

Подробнее об агентстве
Добавить недвижимость
Right Details Banners
Roto Details Banners