Top Banner
Поиск по алфавиту

232.000 € - PRIMOŠTEN Квартира REC-ID 1235846

Галерея
  • Город: PRIMOŠTEN
  • Цена (€): 232.000 €
  • Район: 63 m2
  • Комнат: 3
  • Ванных комнат: 1
  • Транспорт: -
  • Близость моря: -
  • Расстояние до центра: 0 m
  • Расстояние до моря: 0 m

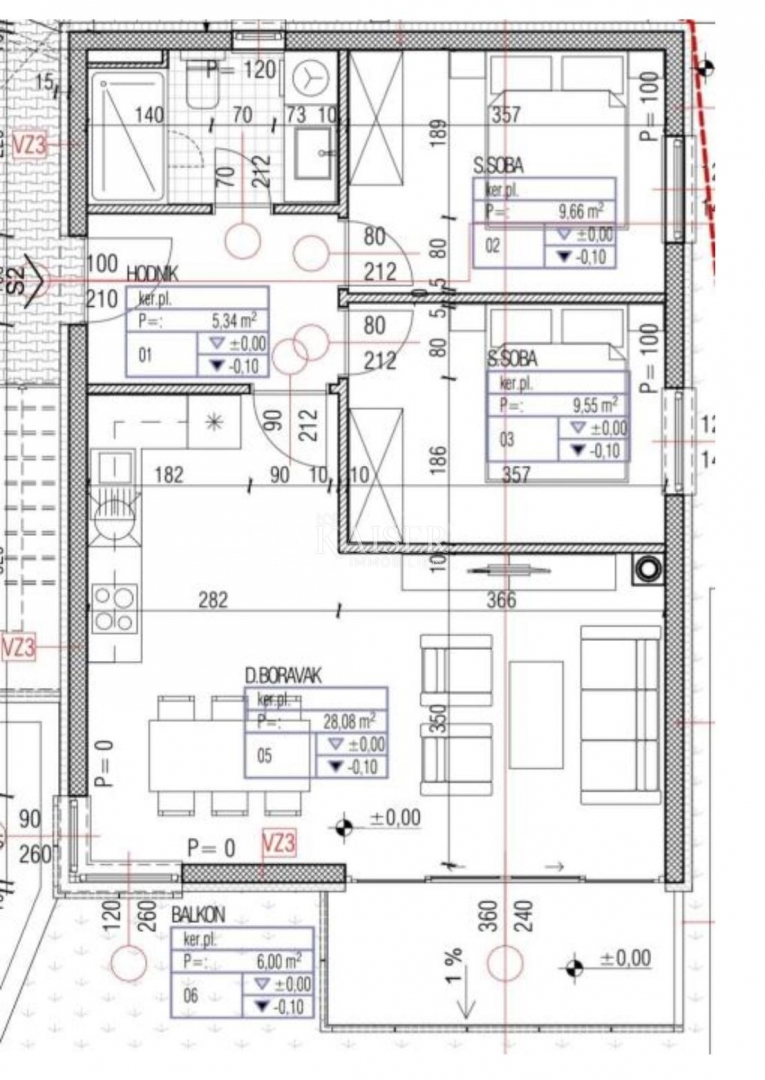
Kaiser Immobilien представляет: Современная двухкомнатная квартира с балконом в самом центре Примоштена. В одном из самых красивых мест на Адриатическом побережье, в живописном Примоштене, расположена эта прекрасная, новая и просторная двухкомнатная квартира. Идеально подходит для семей или в качестве инвестиции для туристической аренды, эта квартира предлагает идеальное сочетание комфорта, функциональности и близости к морю. О НЕДВИЖИМОСТИ: Квартира отличается необычной планировкой и обилием естественного света. Большие стеклянные стены и светлые тона стен создают воздушную и приятную атмосферу, идеально подходящую для отдыха и наслаждения. ПЛАНИРОВКА КВАРТИРЫ: Гостиная и кухня (28,08 м²): Просторная концепция «open-space» объединяет гостиную, столовую и современную кухню в единое пространство, создавая центральное место для семейных встреч. Две спальни: В квартире две комфортабельные спальни (9,66 м² и 9,55 м²), каждая с большими окнами, которые обеспечивают свежий воздух и прекрасный вид на окрестности. Ванная комната: Элегантно оформленная ванная комната оборудована всеми необходимыми сантехническими принадлежностями, включая душ, раковину и туалет. Коридор (5,34 м²): Функциональный коридор, соединяющий все комнаты квартиры. Балкон (6,00 м²): Одним из главных преимуществ этих апартаментов является просторный балкон – идеальное место для утреннего кофе или вечерних посиделок на закате. ДОПОЛНИТЕЛЬНЫЕ ПРЕИМУЩЕСТВА: Кондиционер: Апартаменты оснащены современными кондиционерами, которые обеспечат приятное пребывание даже в самые жаркие летние дни. РАСПОЛОЖЕНИЕ: Примоштен – жемчужина Далмации, известная своими уникальными пляжами, кристально чистым морем и подлинным средиземноморским очарованием. Благодаря своему прекрасному расположению, апартаменты предлагают легкий доступ ко всем удобствам – от пляжей и ресторанов до магазинов и кафе, что гарантирует вам незабываемые впечатления и безмятежный отдых у моря. Эти двухкомнатные апартаменты в Примоштене – идеальный выбор для тех, кто ищет комфортный и первоклассно оборудованный дом для отдыха или выгодную инвестицию в одном из самых привлекательных мест на Адриатике. Комиссия агентства для покупателя составляет 3% + НДС и выплачивается в случае покупки недвижимости при заключении первого договора купли-продажи. Осмотр объекта возможен только при предварительном заключении договора о посредничестве в сделках с недвижимостью. Для личного осмотра обращайтесь: Йошко Башич, эл. почта: josko@kaiser-immobilien.hr, тел.: +385-91-511-2993, http://kaiser-immobilien.hr/

Связаться с продавцом

Kонтакт: Kaiser Immobilien
Запрос на недвижимость: Квартира - Продается - PRIMOŠTEN
RECID: 1235846

Agent

Агент, отвечающий за эту недвижимость в PRIMOŠTEN с ценой 232.000 €

Joško Bašić

Мобильный телефон: +385915112693, +385995677888

Сделать звонок Связаться с продавцом

КОНТАКТ РЕКЛАМОДАТЕЛЯ

При ответе на объявление обязательно укажите шифр объекта недвижимости: REC-1235846

Kaiser Immobilien

Kaiser Immobilien

Телефон: 051823491

Подробнее об агентстве
Добавить недвижимость
Right Details Banners
Roto Details Banners