Top Banner
Поиск по алфавиту

750.000 € - GLAVANI Квартира REC-ID 1233557

Галерея
  • Город: GLAVANI
  • Цена (€): 750.000 €
  • Район: 147 m2
  • Комнат: 4
  • Вид: море
  • Участок: 152 m2
  • Ванных комнат: 3
  • Транспорт: +
  • Близость моря: -
  • Расстояние до центра: 0 m
  • Расстояние до моря: 0 m

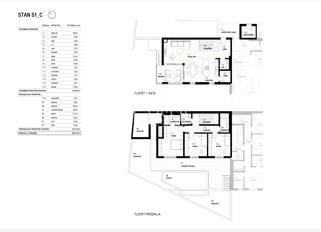
Компания Kaiser Immobilien предлагает эксклюзивную современную недвижимость в Кострене – апартаменты S2-D площадью 164,90 м² с собственным бассейном и прекрасным видом на залив Кварнер. В тихом поселке Главани в Кострене, в окружении зелени и средиземноморской атмосферы, расположены эти роскошные апартаменты, сочетающие в себе современную архитектуру, высокое качество строительства и абсолютный комфорт. Просторные апартаменты площадью 164,90 м² спроектированы как трехкомнатные апартаменты с гостиной, современными ванными комнатами, дополнительным туалетом, гардеробной и практичными подсобными помещениями. Открытая гостиная с кухней и столовой излучает свет и элегантность, а большие стеклянные стены открывают захватывающий вид на море и острова Кварнера. К апартаментам прилегает сад площадью 182,60 м², тщательно благоустроенный и дополненный собственным бассейном площадью 17,64 м², что обеспечивает ощущение полного уединения и покоя. Особое внимание было уделено выбору материалов и строительным технологиям: использовались только высококачественные материалы, а здание оборудовано системой подогрева полов с помощью теплового насоса, системой кондиционирования, трёхслойным паркетом, высококачественной керамикой и алюминиевыми окнами с большими остеклёнными поверхностями, которые обеспечивают дополнительное тепло и свет. В квартире есть два парковочных места и кладовая. Весь проект отличается продуманным дизайном и архитектурой, что гарантирует долгосрочную ценность и высокий уровень комфорта проживания. Расположение в Кострене идеально сочетает в себе тишину и уединение с близостью всех необходимых для современной жизни удобств. В непосредственной близости находятся школы, детские сады, магазины, набережные, велосипедные дорожки и благоустроенные пляжи, а центр Риеки находится всего в десяти минутах езды. Кострена известна своим красивым побережьем, длинной набережной и средиземноморским ландшафтом, что обеспечивает высокое качество жизни круглый год. Помимо отличного сообщения с Риекой и всем Кварнером, Кострена находится на идеальном расстоянии от крупных европейских городов. Расстояние до Любляны составляет около 130 километров, до Триеста – 90 километров, до Загреба – 160 километров, до Венеции – 220 километров, а до Мюнхена и Вены – около 500 километров. Благодаря скоростной автомагистрали и близости аэропорта Риека, добраться до этого места легко и быстро, что ещё больше повышает привлекательность этого места. Этот объект недвижимости представляет собой идеальное сочетание роскоши, комфорта и современной элегантности. Он идеально подходит как для семейной жизни, так и для инвестиций в элитный туризм. Kaiser Immobilien – ваш надёжный партнёр в поиске жилья с видом на море. Комиссия агентства для покупателя составляет 3% + НДС. Комиссия покрывает все услуги, связанные с покупкой, и выплачивается только в случае покупки недвижимости, после заключения сделки. Для получения дополнительной информации обращайтесь: Марияна Кукулич Телефон: +385981869950 Эл. почта: marijana.cuculic@kaiser-immobilien.hr Нелица Арсеньевич Телефон: +385919254809 Эл. почта: nelica@kaiser-immobilien.hr

Связаться с продавцом

Kонтакт: Kaiser Immobilien
Запрос на недвижимость: Квартира - Продается - GLAVANI
RECID: 1233557

Agent

Агент, отвечающий за эту недвижимость в GLAVANI с ценой 750.000 €

Nelica Arsenijević

Мобильный телефон: +385919254809, +385995677888

Сделать звонок Связаться с продавцом

КОНТАКТ РЕКЛАМОДАТЕЛЯ

При ответе на объявление обязательно укажите шифр объекта недвижимости: REC-1233557

Kaiser Immobilien

Kaiser Immobilien

Телефон: 051823491

Подробнее об агентстве
Добавить недвижимость
Right Details Banners
Roto Details Banners