 
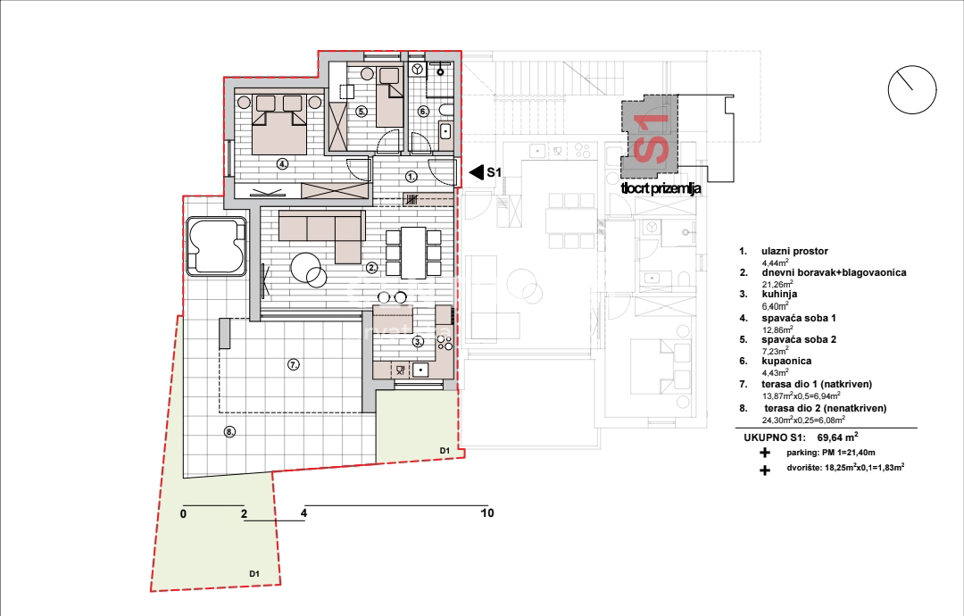
                        Century 21 пос посредует в продаже квартир в Примоштене. На продажу выставлена современная 2,5-комнатная квартира площадью 82,17 м2, расположенная на первом этаже новостройки общей высотой четыре этажа в Примоштене. Эта квартира выделяется своей современной архитектурой и привлекательным расположением рядом с природой. Завершение работ планируется к концу 2026 года. Квартира состоит из двух спален, гостиной и ориентирована на юго-запад, что обеспечивает обилие естественного света в течение всего дня. Пространство тщательно спроектировано для обеспечения комфорта и функциональности с особым акцентом на дизайнерские детали и благоустройство прилегающей территории. Из дополнительных удобств квартира предлагает двор с джакузи, террасу и сад, что делает её идеальным выбором для семей и всех, кто ценит открытое пространство. Оснащена тёплыми полами, кондиционером и спутниковым ТВ, а доступ адаптирован для лиц с ограниченными возможностями. На территории объекта находится парковка с зарядной станцией для электромобилей. Расположение квартиры в Примоштене предоставляет прекрасный вид на море и близость к природным красотам, что дополнительно повышает качество жизни. Эта недвижимость представляет отличную возможность для тех, кто ищет сочетание комфорта, современного дизайна и привлекательного местоположения. Для дополнительной информации или договорённости о просмотре, пожалуйста, свяжитесь с нами. Для всех дальнейших вопросов обращайтесь к нашему лицензированному агенту: Томислав Миятович лицензированный агент по недвижимости / Immobilienmakler / real estate agent (HR/DE/EN) e: tomislav.mijatovic@c21.hr m: +385 91 608 1072 CENTURY 21 Lider Nekretnine
Агент, отвечающий за эту недвижимость в PRIMOŠTEN с ценой 402.000 €
Tomislav Mijatović
                                Телефон: +385916081072
                        
При ответе на объявление обязательно укажите шифр объекта недвижимости: REC-1230248
 
                    CENTURY 21 Lider Nekretnine
Телефон: +38598492873
Подробнее об агентствеПоследние объекты
Связанные объекты недвижимости