
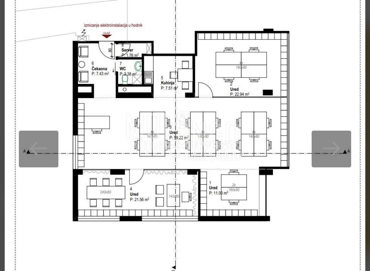
РИЕКА – БРАЙДА Продаётся полностью отремонтированное офисное помещение площадью 145 м², расположенное в представительном здании с лифтом в престижном районе, удобном для ведения бизнеса. Помещение открытой планировки, с большими окнами, откуда открывается прекрасный вид на море, центр города и гору Учка. Полностью отремонтировано – новые коммуникации, окна и электрические жалюзи. В дополнение к основной открытой зоне есть мини-кухня, туалет и серверная, что обеспечивает функциональность и комфорт. Местоположение исключительно привлекательное – престижная часть города с отличной транспортной доступностью и близостью всех ключевых объектов. В непосредственной близости расположено несколько парковок, что крайне важно для клиентов и сотрудников. Эта недвижимость сочетает современный дизайн, удобное расположение и практичность, являясь отличной возможностью для офисов, агентств, консалтинговых фирм, IT-компаний и других бизнесов, которые ищут профессиональное и представительское пространство в центре Риеки. Для получения дополнительной информации и осмотра звоните +385/99/320-0008.
Агент, отвечающий за эту недвижимость в RIJEKA с ценой 395.000 €
Smart Invest Properties
Телефон: 091/320-0020
Мобильный телефон: +385(0)91/320-0020
При ответе на объявление обязательно укажите шифр объекта недвижимости: REC-1218825
Smart Invest Properties
Телефон: +385/99/320-0008
Мобильный телефон: +385/99/320-0008
Последние объекты
Связанные объекты недвижимости