Top Banner
Поиск по алфавиту

320.000 € - NOVIGRAD Квартира REC-ID 1143347

Галерея
  • Город: NOVIGRAD
  • Цена (€): 320.000 €
  • Район: 68 m2
  • Комнат: 3
  • Ванных комнат: 2
  • Транспорт: -
  • Близость моря: -
  • Расстояние до центра: 0 m
  • Расстояние до моря: 700 m

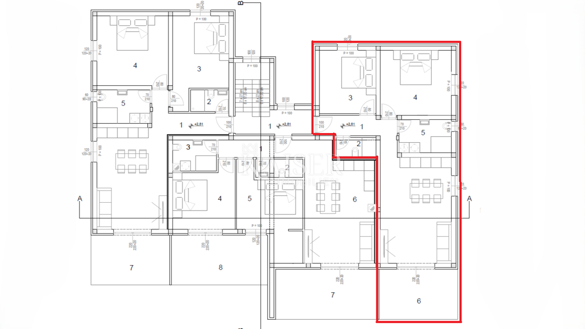
Небольшой городок Новиград, расположенный на западном побережье Истрии, выделяется своей природной красотой и богатым культурным наследием. Это также город, который может похвастаться одним из самых чистых морей в этой части Средиземного моря. Новиградская ривьера простирается от Дайлы до устья реки Мирны и украшена изрезанным, низким и доступным берегом, каменистыми и галечными пляжами. Kaiser Immobilien представляет квартиру, расположенную в двухэтажном жилом доме, который расположен в чрезвычайно привлекательном месте Новиграда, всего в 700 м от пляжей и городской пристани и в 1000 м от центра города, где расположены все рестораны, магазины. и другие ждут вас. Эта двухкомнатная квартира, расположенная на первом этаже, имеет площадь 68м2, просторный балкон 13м2 и общую жилую площадь 78м2. С просторного балкона открывается прекрасный вид на окрестности и город Новиград. Квартира состоит из гостиной с прихожей, столовой и кухни 32м2, двух спален 12м2 и 16м2, ванной комнаты 6м2 и туалета 3м2. Из гостиной есть выход на балкон с прекрасным видом. Квартира имеет одно парковочное место перед домом. Квартира отапливается и охлаждается инверторными мультисплит-кондиционерами во всех комнатах, в санузлах установлены электрические теплые полы, для поддержания температуры используется фасадная теплоизоляция толщиной 10 см. Устанавливаются качественные столярные изделия из ПВХ с алюминиевыми ставнями, противовзломные и огнестойкие входные двери, первоклассные напольные покрытия (керамика и паркет) по всей квартире, качественная сантехника. Ожидаемое окончание работ по завершению отделки квартиры – весна 2025 года. Квартира представляет собой уникальную возможность купить просторную квартиру в красивом и удобном месте для проживания или туризма. Любляна: 140 км Вена: 520 км Будапешт: 600 Аэропорт Венеции: 200 км Аэропорт Пулы: 70 км Продавец является плательщиком НДС, и при покупке этой недвижимости налог на недвижимость не взимается. Комиссия посредника для покупателя составляет 3% + НДС. Комиссия покрывает все услуги, связанные с покупкой, и выплачивается только в случае покупки недвижимости, при заключении первой юридической сделки. Не стесняйтесь обращаться к нам для получения дополнительной информации и организации экскурсии по объекту: Дамир Млакович, электронная почта: damir@kaiser-immobilien.hr, телефон: +385-98-339-933.

Связаться с продавцом

Kонтакт: Kaiser Immobilien
Запрос на недвижимость: Квартира - Продается - NOVIGRAD
RECID: 1143347

Agent

Агент, отвечающий за эту недвижимость в NOVIGRAD с ценой 320.000 €

Damir Mlacović

Мобильный телефон: +38598339933, +385995677888

Сделать звонок Связаться с продавцом

КОНТАКТ РЕКЛАМОДАТЕЛЯ

При ответе на объявление обязательно укажите шифр объекта недвижимости: REC-1143347

Kaiser Immobilien

Kaiser Immobilien

Телефон: 051823491

Подробнее об агентстве
Добавить недвижимость
Right Details Banners
Roto Details Banners