Top Banner
Поиск по алфавиту

REC-ID 1040702

Недвижимость неактивна

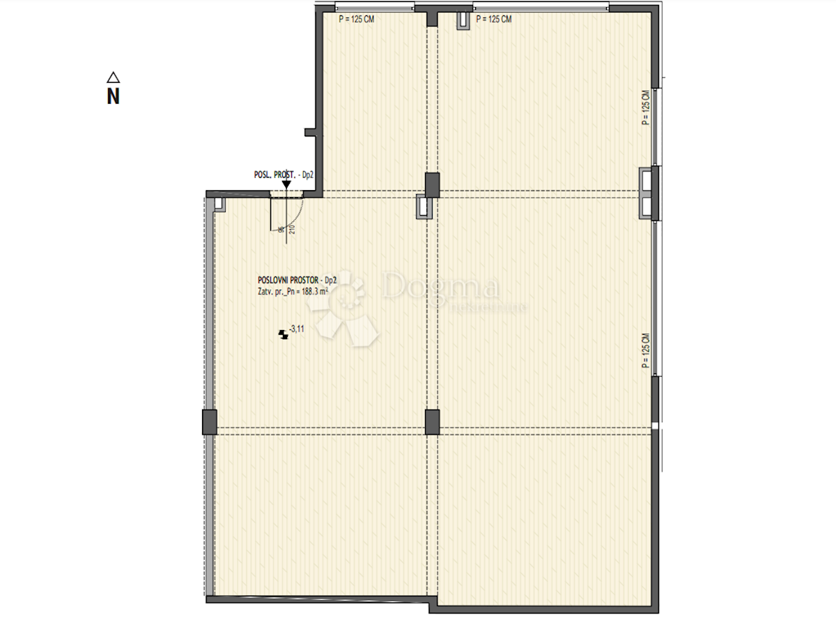
Коммерческая площадь MEJAŠI, SPLIT Цена отсутствует Продается

КОНТАКТ РЕКЛАМОДАТЕЛЯ

При ответе на объявление обязательно укажите шифр объекта недвижимости: REC-1040702

Dogma nekretnine d.o.o.

Dogma nekretnine d.o.o.

Телефон: 051 330 065

Подробнее об агентстве
Добавить недвижимость
Right Details Banners
Roto Details Banners