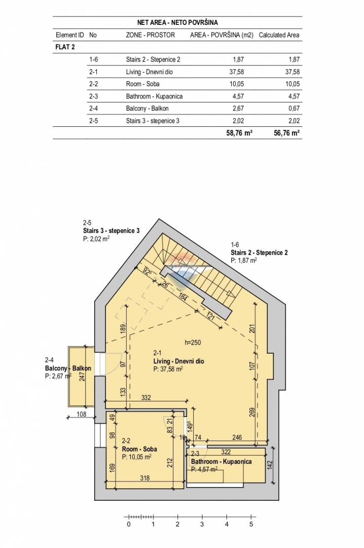
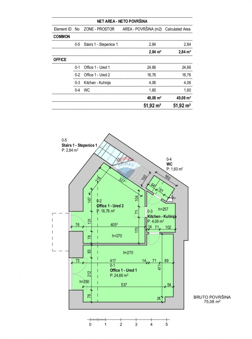
Casa in città ŠIBENIK - con un prezzo di 520.000,00 € - con una superficie di 177 m2

Foto dell'agenzia RE/MAX Domani

REC ID 1225388

Dettagli