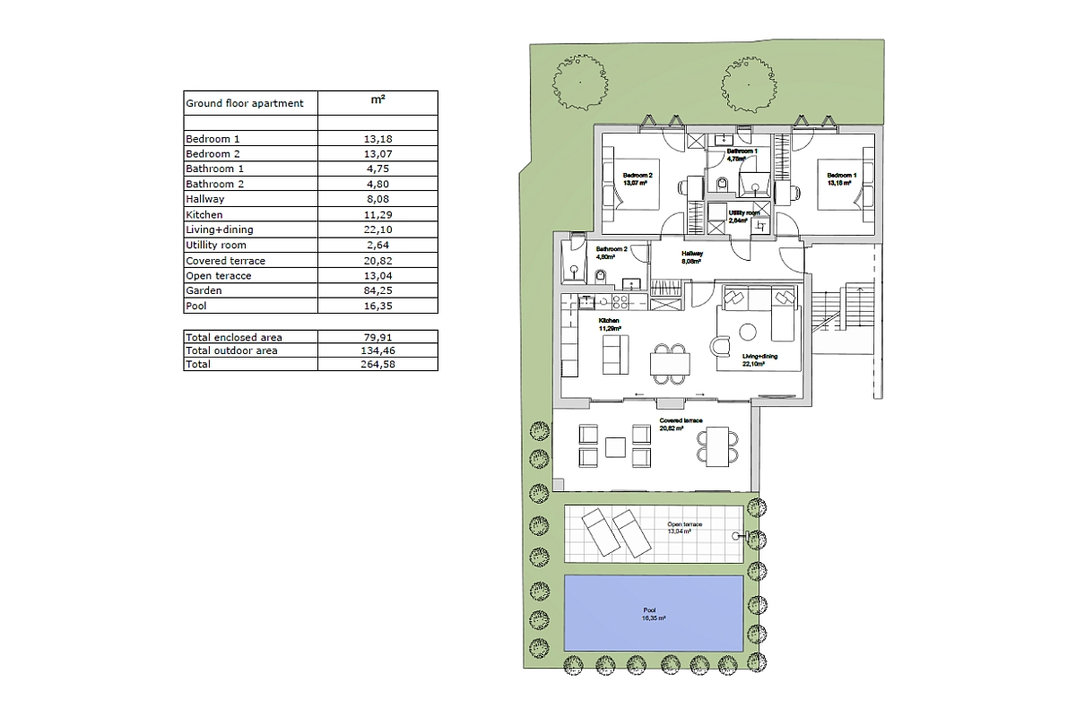
Un bellissimo appartamento con due camere da letto è in vendita in un condominio di nuova costruzione, situato in una posizione privilegiata sopra Primošten. Situato al piano terra dell’edificio, si estende su 80 m² di superficie abitabile e circa 135 m² di spazio esterno. È composto da due camere da letto, di cui la principale con bagno privato, oltre a un corridoio, un ripostiglio e una zona giorno che unisce cucina, soggiorno e sala da pranzo. Ampie vetrate collegano gli spazi interni ed esterni. L’area esterna comprende una terrazza coperta di 20 m², una piscina riscaldata di 16 m² con zona solarium e un giardino di 65 m². L’appartamento dispone anche di un posto auto. Questo appartamento è un ottimo investimento sia per il turismo che per le vacanze in famiglia.
Contatando l'inserzionista per favore citare il codice dell'immobile: REC-1260110
BROKER - Real Estate Agency
Telefono: 021 541 000
Maggiori informazioni sull'agenziaUltimi immobili del venditore
Immobili correlati