Top Banner
Ricerca alfabetica

207.500 € - PLOVANIJA Appartamento REC-ID 1257712

Galleria
  • Città: PLOVANIJA
  • Prezzo (€): 207.500 €
  • Superficie: 47 m2
  • Vani: 2
  • Parcheggio: 24 m2
  • Trasporti: +
  • Vicinanza mare: -
  • Distanza dal centro: 0 m
  • Distanza dal mare: 0 m

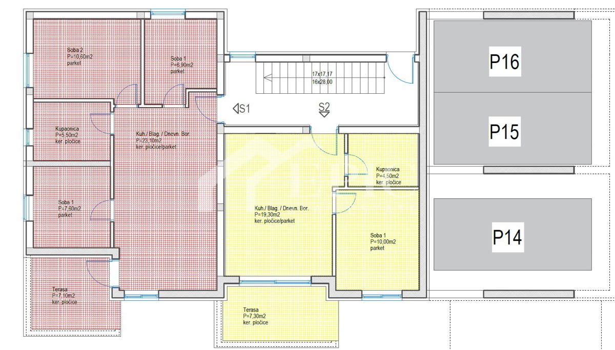
Abbiamo in offerta per voi una nuova costruzione in uno dei quartieri cittadini più richiesti, Plovanija. L’appartamento contrassegnato come S2, al piano terra di un edificio con otto unità abitative, è composto da - cucina con sala da pranzo e soggiorno, camera da letto, bagno e terrazza coperta. All’appartamento appartengono anche due posti auto. La superficie utile totale dell’appartamento S2 con parti accessorie e pertinenze è di 118,60 m2, mentre la superficie utile totale dell’appartamento è di 47,95 m2. Nella costruzione vengono utilizzati materiali e attrezzature di alta qualità, tra cui porte antieffrazione e tagliafuoco, riscaldamento a pavimento nei bagni, climatizzatori per riscaldamento e raffreddamento, infissi in PVC a triplo vetro. È previsto un certificato energetico di classe A+. Il termine previsto per il trasferimento è l’inizio dell’estate 2026. Nello stesso edificio sono disponibili anche i seguenti appartamenti: 1° piano: S3 – trilocale – 257.500 € S4 – monolocale – 185.000 € S5 – trilocale – 278.000 € 2° piano: S6 – trilocale – 257.500 € S7 – monolocale – 185.000 € S8 – trilocale – 278.000 € Plovanija è uno dei quartieri residenziali più richiesti e in più rapida crescita a Zadar, ideale per una vita tranquilla, piacevole e di qualità. Situata nella parte occidentale della città, Plovanija offre un perfetto equilibrio tra collegamenti urbani e tranquillità familiare. Nelle immediate vicinanze si trovano tutti i servizi chiave per la vita quotidiana — negozi, scuole, asili, strutture sportive, farmacie e caffè — mentre il centro città e le spiagge cittadine sono raggiungibili in pochi minuti di auto. Un’ottima viabilità consente un rapido accesso all’uscita dalla città e un facile collegamento a tutte le zone di Zadar. L’acquirente NON PAGA l’imposta sulle transazioni immobiliari!! Per ulteriori informazioni o per una visita all’immobile, non esitate a contattarci. Emil Perović +385 98 63 36 17 info@epic-nekretnine.com EPIC NEKRETNINE d.o.o. Polačišće 4, Zadar

Contatta venditore

Contatto: EPIC NEKRETNINE
Immobile: Appartamento - Vendita - PLOVANIJA
RECID: 1257712

Agent

Agente responsabile di questa proprietà in PLOVANIJA di 207.500 €

Emil Perović

Telefono: +385992206266
Cellulare: +38598633617
Lingue straniere: engleski

Fare una chiamata Contatta venditore

CONTATTO INSERZIONISTA

Contatando l'inserzionista per favore citare il codice dell'immobile: REC-1257712

EPIC NEKRETNINE

EPIC NEKRETNINE

Telefono: +385992206266
Cellulare: +385992206266

Maggiori informazioni sull'agenzia
Aggiungi proprietà
Right Details Banners
Roto Details Banners