Top Banner
Ricerca alfabetica

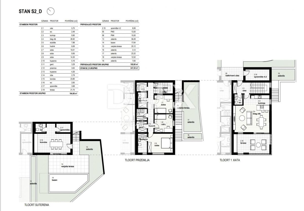
692.600 € - KOSTRENA Appartamento REC-ID 1249854

Galleria
  • Città: KOSTRENA
  • Prezzo (€): 692.600 €
  • Superficie: 164 m2
  • Vani: 4
  • Vista: mare
  • Terra: 182 m2
  • Bagni: 3
  • Trasporti: +
  • Vicinanza mare: -
  • Distanza dal centro: 0 m
  • Distanza dal mare: 0 m

RIJEKA, KOSTRENA - esclusivo appartamento su due piani 164,90 m2, nuova costruzione con splendida vista sul mare e piscina + giardino 182,60 m2 - S2-D Vi offriamo una proprietà che si distingue per il design moderno e l'eleganza, il comfort e le attrezzature di prima qualità, ed è situata in una splendida e tranquilla posizione vicino ai mezzi pubblici, alle scuole, agli asili, ai centri commerciali e a dieci minuti di auto da Fiume. Il complesso di 4 edifici residenziali con un totale di 8 appartamenti si trova a nord della strada statale adriatica, nella zona di "Zelena Kostrena", da dove si gode una splendida vista sull'intero Golfo del Quarnero. Nelle immediate vicinanze si trovano 10 chilometri di sentieri escursionistici, ciclabili e percorsi fitness ben curati, che attraversano le parti più alte di Kostrena, dalla cima di Solin alla cima di Sopalj. L'accesso alle case avviene dalla strada superiore, dove si prevede di migliorare e ampliare la strada esistente. Ogni casa dispone di quattro posti auto esterni, ovvero due posti auto per unità abitativa. Ogni casa è composta da due appartamenti. Gli appartamenti sui due lotti superiori sono situati uno sopra l'altro, mentre quelli sui due lotti inferiori sono situati uno accanto all'altro. Ogni appartamento ha una parte di giardino. CASA D appartamento S2 - D: SPAZI ABITATIVI: - ingresso 5,75 - WC 2,49 - cucina 9,90 - soggiorno/sala da pranzo 26,92 - scala 7,88 - disimpegno 6,69 - camera 10,01 - camera 9,95 - camera 14,30 - bagno 5,16 - guardaroba 3,29 - lavanderia 3,63 - bagno 4,26 - dispensa 2,79 - cantina 23,80 - WC 2,65 - ripostiglio 3,68 - terrazza 21,75 SPAZI ABITATIVI TOTALI: 164,90 m² SPAZI ASSOCIATI: - ripostiglio 4,2 8,06 - posto auto 3 13,50 - posto auto 4 15,00 - verde 56,49 - piscina 17,64 - esterno terrazza 25,12 - verde 3,12 - verde 23,32 - terrazza esterna 12,52 - verde 7,83 SPAZI ASSEGNATI TOTALE: 182,60 m² APPARTAMENTO S2-D TOTALE: 347,50 m² Questo lussuoso appartamento è progettato per il massimo comfort. DOTAZIONE: La casa in cui si trova l'appartamento è ben costruita e lussuosamente arredata, tutti i materiali di costruzione, i pavimenti e i rivestimenti delle pareti sono di altissima qualità. - Isolamento della facciata spesso 10 cm - riscaldamento a pavimento - pompe di calore - serramenti in alluminio di alta qualità. L'appartamento dispone di giardino privato e 2 posti auto. PREZZO: Il prezzo indicato si riferisce all'immobile completamente ultimato chiavi in mano, senza arredamento. Il prezzo è comprensivo di IVA, l'acquirente è esonerato dal pagamento dell'imposta immobiliare. In caso di acquisto da una società registrata in Croazia, è possibile ottenere il rimborso completo dell'IVA dopo la vendita. Proprietà pulita e ordinata. Sicuramente una bella proprietà per una lussuosa vita familiare, ma adatta anche come investimento sotto forma di turismo d'élite. PROPRIETÀ UNICA CHE MERITA SICURAMENTE LA VOSTRA ATTENZIONE IN UNA POSIZIONE FANTASTICA!!! KOSTRENA Kostrena è un'antica e popolare cittadina costiera, menzionata per la prima volta all'inizio del XV secolo. Ottenne la sua prima indipendenza municipale nel 1874, ma la mantenne per un periodo molto breve, solo due anni. È diviso in due parti: St. Lucia e S. Barbara, dal nome di due chiese presenti nella sua zona. Kostrena si trova nelle immediate vicinanze della città di Fiume, incorniciata dalla baia di Martinšćica e dalla baia di Buccari. La penisola di Kostrena è lunga circa 10 chilometri e degrada dolcemente verso la costa. Lungo tutta la sua lunghezza si trovano bellissime spiagge, frequentate durante l'estate da migliaia di bagnanti. Le più famose e visitate sono quelle nella baia di Žurkovo, seguite da Smokvinovo, Svežanj, Spužvina, Podražica, Nova voda e Perilo. Kostrena è composta da una ventina di insediamenti, molti dei quali prendono il nome da famiglie; oggi i più popolati sono Vrh Martinšćice, Glavani, Sv. Lucija, Rožmanići, Doričići e Paveki. Le caratteristiche di questa regione sono il caratteristico paesaggio carsico con vegetazione mediterranea e la famosa gromača di Kostrena, nonché un clima mite che a volte cede il passo a forti raffiche di bora. Cari clienti, la commissione d'agenzia viene addebitata in conformità con i Termini e le Condizioni Generali: www.dux-nekretnine.hr/opci-uvjeti-poslovanja

Contatta venditore

Contatto: DUX Nekretnine
Immobile: Appartamento - Vendita - KOSTRENA
RECID: 1249854

Aggiungi proprietà
Right Details Banners
Roto Details Banners