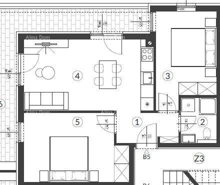
Vendita di appartamenti nel nuovo progetto, Pula! Progetto residenziale a Pula, edificio di tre piani con 12 unità abitative. L'appartamento B5, di 61,69 m², si trova al primo piano dell'edificio e consiste in: corridoio + guardaroba, soggiorno con cucina e sala da pranzo, 2 camere da letto, bagno e terrazza coperta. Gli appartamenti saranno dotati di climatizzatori inverter, riscaldamento a pavimento nei bagni, ceramiche e pavimenti di alta qualità. All'appartamento sono assegnati due posti auto. L'occupazione degli appartamenti è prevista per la fine del 2026. Per ulteriori informazioni, si prega di contattare: Info: +385 91 611 57 06 +385 98 420 885 azra@almadominvest.com
Agente responsabile di questa proprietà in PULA di 196.300 €
Gojko Djurković
Telefono:
+38552394310
Cellulare:
+385954700000
Lingue straniere:
Engleski
Contatando l'inserzionista per favore citare il codice dell'immobile: REC-1249081
Alma Dom - Real Estate
Telefono: +385916115706
Cellulare:
+385 91 6115706 +38598420885 +385991962863
Ultimi immobili del venditore
Immobili correlati