Top Banner
Ricerca alfabetica

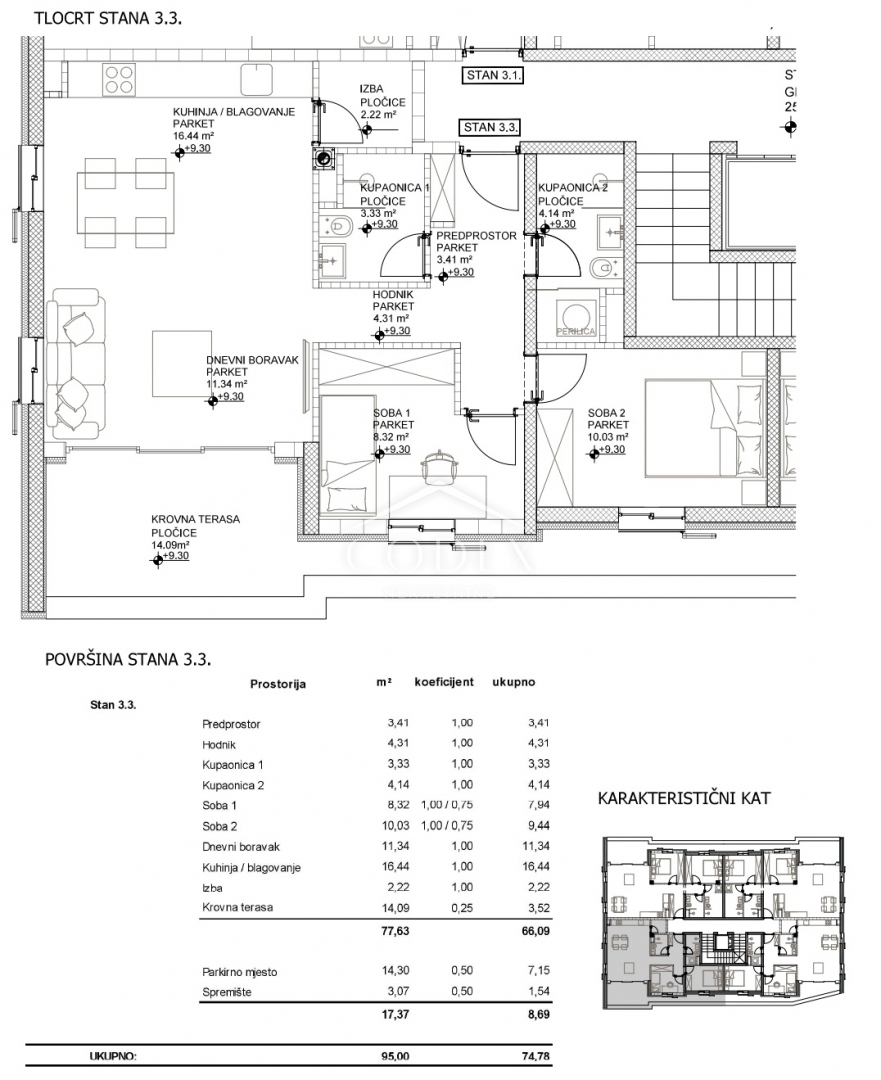
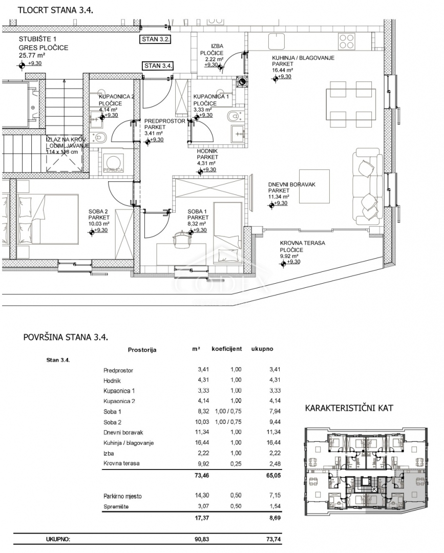
335.000 € - CRES Appartamento REC-ID 1247233

Galleria
  • Città: CRES
  • Prezzo (€): 335.000 €
  • Superficie: 55 m2
  • Vani: 2
  • Vista: mare
  • Trasporti: -
  • Vicinanza mare: -
  • Distanza dal centro: 0 m
  • Distanza dal mare: 0 m

Contatta venditore

Contatto: Codex nekretnine
Immobile: Appartamento - Vendita - CRES
RECID: 1247233

Agent

Agente responsabile di questa proprietà in CRES di 335.000 €

Gordana Grgat

Cellulare: +385 95 712 9727

Fare una chiamata Contatta venditore

CONTATTO INSERZIONISTA

Contatando l'inserzionista per favore citare il codice dell'immobile: REC-1247233

Codex nekretnine

Codex nekretnine

Telefono: 0989011342
Cellulare: 0989011342

Maggiori informazioni sull'agenzia
Aggiungi proprietà
Right Details Banners
Roto Details Banners