Top Banner
Ricerca alfabetica

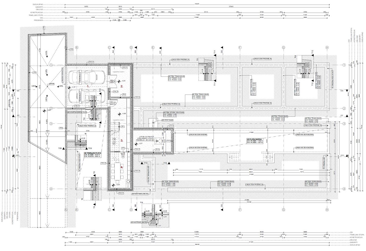
205.600 € - BUJE Terreno REC-ID 1242523

Galleria
  • Città: BUJE
  • Prezzo (€): 205.600 €
  • Superficie: 1285 m2
  • Terra: 1285 m2
  • Trasporti: +
  • Vicinanza mare: +
  • Distanza dal centro: 3000 m
  • Distanza dal mare: 6000 m

In una zona tranquilla nei pressi di Buie, vicino al confine con la Slovenia, è in vendita un terreno edificabile di 1.285 m² con progetto concettuale pronto per la presentazione della richiesta del permesso di costruire. Circondato da poche case e dalla natura incontaminata dell’Istria, il terreno offre grande privacy e condizioni ideali per la costruzione di una villa moderna. Il progetto prevede una villa elegante e contemporanea, sviluppata su un unico piano, progettata per offrire il massimo comfort e funzionalità. Dispone di quattro ampie camere da letto, un grande soggiorno open space, una zona fitness e una lussuosa piscina esterna di 70 m², pensata come fulcro della zona relax. Grazie alla posizione, alla dimensione del terreno e alla documentazione già predisposta, questa proprietà rappresenta un’ottima opportunità per realizzare una moderna residenza privata o un investimento immobiliare in una delle aree più ricercate dell’Istria nord-occidentale.

Contatta venditore

Contatto: REN nekretnine
Immobile: Terreno - Vendita - BUJE
RECID: 1242523

CONTATTO INSERZIONISTA

Contatando l'inserzionista per favore citare il codice dell'immobile: REC-1242523

REN nekretnine

REN nekretnine

Telefono: 00385/0/52726664
Cellulare: 00385/0/992499444

Maggiori informazioni sull'agenzia
Aggiungi proprietà
Right Details Banners
Roto Details Banners