Top Banner
Ricerca alfabetica

450.000 € - ROŽIĆI Terreno REC-ID 1239362

Galleria
  • Città: ROŽIĆI
  • Prezzo (€): 450.000 €
  • Superficie: 1035 m2
  • Vista: mare
  • Trasporti: +
  • Vicinanza mare: -
  • Distanza dal centro: 0 m
  • Distanza dal mare: 100 m

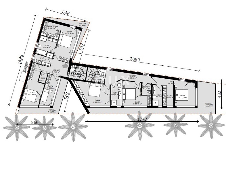
RIJEKA, KOSTRENA - terreno con progetto in seconda fila al mare, per ville bifamiliari con piscina Proponiamo in vendita un terreno di pregio sopra il centro di Fiume, praticamente in prima fila al mare, in una delle posizioni più ambite di Kostrena. Si tratta di uno degli ultimi lotti edificabili disponibili nel prestigioso "Vicolo dei Ricchi", il che rende questa offerta ancora più preziosa. Il terreno è già progettato per due eleganti e moderne ville bifamiliari su due piani, con piscina e posti auto custoditi: un punto di partenza ideale per chi desidera un progetto di lusso senza una pianificazione a lungo termine. La prima spiaggia è raggiungibile a piedi in soli 100 metri. In particolare, la strada è tranquilla, ordinata e perfetta per una vita quotidiana di qualità, ma anche per un investimento serio nel settore turistico o per un progetto residenziale di lusso. Il terreno è pianeggiante, facilmente fruibile e pronto per il progetto principale e l'inizio dei lavori. Inoltre, la proprietà è in ordine e la strada di accesso è stata risolta. Questo terreno si trova a un minuto da tutti i servizi principali, dalle spiagge di Kostrena, dai lungomare e dalle aree sportive, mentre Fiume è raggiungibile in soli dieci minuti di auto. Un'opportunità ideale per chi riconosce il valore di una posizione oggi quasi introvabile. Per organizzare una visita all'immobile, contattate un agente di fiducia: è possibile richiedere una consulenza in tedesco. Gentili clienti, la commissione d'agenzia viene addebitata in conformità con i Termini e Condizioni Generali: www.dux-nekretnine.hr/opci-uvjeti-poslovanja

Contatta venditore

Contatto: DUX Nekretnine
Immobile: Terreno - Vendita - ROŽIĆI
RECID: 1239362

Aggiungi proprietà
Right Details Banners
Roto Details Banners