Top Banner
Ricerca alfabetica

123.000 € - POREČ Terreno REC-ID 1239161

Galleria
  • Città: POREČ
  • Prezzo (€): 123.000 €
  • Superficie: 988 m2
  • Trasporti: -
  • Vicinanza mare: -
  • Distanza dal centro: 0 m
  • Distanza dal mare: 14000 m

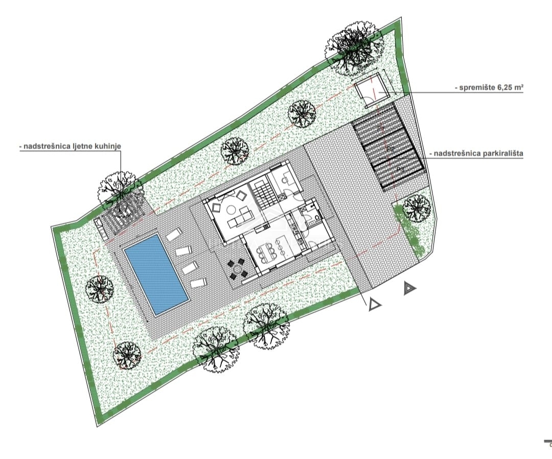
Nelle vicinanze della città di Parenzo, non lontano da Baderna e Visignano, si trova questo terreno edificabile con permesso di costruire valido e pronto per la costruzione. L'edificio progettato ha un design moderno e comprende una grande piscina, una cucina estiva e un posto auto coperto nel cortile. Con tutta la documentazione e i permessi già pronti per tutti coloro che sono impazienti e desiderano iniziare i lavori il prima possibile, questo terreno potrebbe essere l'occasione giusta. Un tranquillo villaggio istriano con poche case garantirà tranquillità durante tutto l'anno per un relax indisturbato e senza interruzioni in questa casa dal design eccellente. Non perdetevi questo terreno. La proprietà può essere visitata esclusivamente dopo la firma di un contratto di mediazione, che costituisce la base per la procedura successiva in relazione all'acquisto e alla vendita, nonché per l'addebito della provvigione secondo la legge sulla mediazione immobiliare. Nel caso di un contratto di acquisto, la commissione di mediazione è del 3% senza IVA e viene addebitata sia al compratore che al venditore al momento della firma del preliminare/contratto di acquisto.

Contatta venditore

Contatto: Histria Properties
Immobile: Terreno - Vendita - POREČ
RECID: 1239161

Agent

Agente responsabile di questa proprietà in POREČ di 123.000 €

Sanel Budimlić

Cellulare: +385 99 205 2733

Fare una chiamata Contatta venditore

CONTATTO INSERZIONISTA

Contatando l'inserzionista per favore citare il codice dell'immobile: REC-1239161

Histria Properties

Histria Properties

Telefono: 0992052733

Maggiori informazioni sull'agenzia
Aggiungi proprietà
Right Details Banners
Roto Details Banners