Top Banner
Ricerca alfabetica

145.000 € - KANFANAR Terreno REC-ID 1232471

Galleria
  • Città: KANFANAR
  • Prezzo (€): 145.000 €
  • Terra: 727 m2
  • Trasporti: -
  • Vicinanza mare: -
  • Distanza dal centro: 0 m
  • Distanza dal mare: 0 m

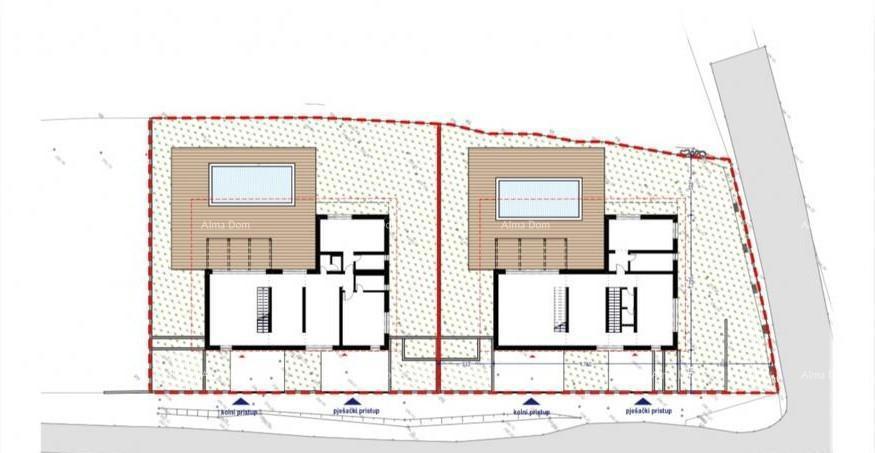
In vendita terreno edificabile con permesso di costruzione – Kanfanar Si vende un terreno edificabile in una zona tranquilla ai margini del paese di Kanfanar, situato all'estremità della zona edificabile. Il lotto ha accesso da una strada asfaltata, è pianeggiante ed è ideale per la costruzione. Si trova a soli 3 km dall'uscita dell'autostrada per Rovinj e, grazie alla sua eccellente posizione geografica, tutte le destinazioni in Istria – dal nord al sud della penisola – sono raggiungibili in 40 minuti di auto. Per il lotto è stata redatta la documentazione progettuale per la costruzione di una villa con piscina, e il permesso di costruzione è già stato rilasciato, il che consente l'inizio immediato dei lavori. C'è la possibilità di acquistare anche un ulteriore lotto adiacente a questo. Per ulteriori informazioni, si prega di contattare: Azra +385 91 611 5706 +385 98 420 885 azra@almadominvest.com

Contatta venditore

Contatto: Alma Dom - Real Estate
Immobile: Terreno - Vendita - KANFANAR
RECID: 1232471

Agent

Agente responsabile di questa proprietà in KANFANAR di 145.000 €

Azra Valjevac

Telefono: +61421637418
Cellulare: +385916115706
Lingue straniere: Talijanski, Engleski, Bosanski

Fare una chiamata Contatta venditore

CONTATTO INSERZIONISTA

Contatando l'inserzionista per favore citare il codice dell'immobile: REC-1232471

Alma Dom - Real Estate

Alma Dom - Real Estate

Telefono: +385916115706
Cellulare: +385 91 6115706 +38598420885 +385991962863

Maggiori informazioni sull'agenzia
Aggiungi proprietà
Right Details Banners
Roto Details Banners