
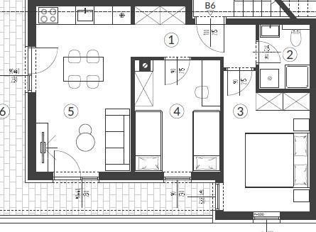
Vendita di appartamenti in un nuovo progetto, Pula! Progetto residenziale a Pula, edificio con tre piani e 12 unità abitative. L'appartamento B6, di superficie 54.84 m2, si trova al primo piano dell'edificio e si compone di: corridoio + guardaroba, soggiorno con cucina e sala da pranzo, 2 camere da letto, bagno e terrazza coperta. Gli appartamenti saranno dotati di climatizzatori inverter, riscaldamento a pavimento nei bagni, ceramiche e pavimenti di alta qualità. All'appartamento è assegnato un posto auto. Il trasferimento negli appartamenti è previsto per la fine del 2026. Per ulteriori informazioni, si prega di contattare: Info: +385 91 611 57 06 +385 98 420 885 azra@almadominvest.com
Agente responsabile di questa proprietà in PULA di 174.000 €
Gojko Djurković
Telefono: +38552394310
Cellulare: +385954700000
Lingue straniere: Engleski
Contatando l'inserzionista per favore citare il codice dell'immobile: REC-1226770
Alma Dom - Real Estate
Telefono: +385916115706
Cellulare: +385 91 6115706 +38598420885 +385991962863