
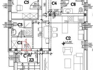
Medolino, posizione tranquilla, vicino al mare - appartamento al 2° piano. L'edificio è disposto su 3 piani, con un appartamento per piano. Questo confortevole appartamento al 2° piano è contrassegnato con la lettera "C" e dispone di 3 camere da letto, 2 bagni e un balcone di 16 m² con una splendida vista sui pini verdi e sul mare: DISIMPEGNO - 2,76 m² SOGGIORNO E CUCINA - 29,76 m² BAGNO - 3,74 m² DISIMPEGNO - 4,77 m² CAMERA DA LETTO - 11,55 m² CAMERA DA LETTO - 11,13 m² BAGNO - 4,83 m² CAMERA DA LETTO - 8,25 m² BALCONE - 13,62 m²*0,50+2,33 m²*0,25=7,39 m² La superficie netta totale dell'appartamento "C" è di 84,18 m². Con l'appartamento è possibile scegliere tra 2 posti auto esterni o 1 posto auto e un garage, a seconda della disponibilità del garage, poiché l'edificio dispone di un solo garage, oltre a un ripostiglio a pagamento. Il prezzo si basa esclusivamente sulla superficie abitabile. L'edificio è stato costruito e l'appartamento è pronto per essere abitato. È dotato di condizionatori inverter in ogni stanza, il cui pavimento è previsto in laminato, e in bagno, soggiorno e cucina saranno presenti piastrelle in ceramica di qualità con riscaldamento a pavimento. Le finestre sono a tre strati color antracite all'esterno e all'interno, con finestre alzanti-scorrevoli nel soggiorno con accesso alla terrazza; inoltre, solo su queste finestre sono installate le zanzariere elettriche. Tutte le finestre sono dotate di zanzariere. Per ulteriori informazioni, chiamaci o fissa un appuntamento per una visita: Azra +385 91 611 5706 +385 98 420 885 azra@almadominvest.com
Agente responsabile di questa proprietà in MEDULIN di 330.000 €
Alma Valjevac
Telefono: +38552213332
Cellulare: +38598420885
Contatando l'inserzionista per favore citare il codice dell'immobile: REC-1226343
Alma Dom - Real Estate
Telefono: +385916115706
Cellulare: +385 91 6115706 +38598420885 +385991962863
Ultimi immobili del venditore
Immobili correlati