
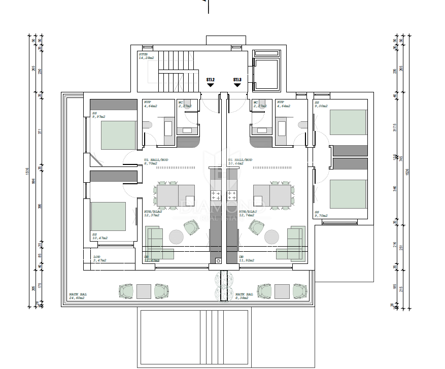
Jadranovo – moderno appartamento con due camere, ampia terrazza e loggia Situato in una nuova costruzione la cui consegna è prevista per la primavera del 2026, questo elegante appartamento con due camere da letto si trova in una zona tranquilla di Jadranovo e unisce design contemporaneo, funzionalità e vicinanza al mare. Si trova al primo piano di una moderna palazzina con quattro unità abitative e offre un alto livello di comfort e qualità costruttiva secondo gli standard più recenti. L’appartamento è composto da un ingresso, ampio soggiorno open space con cucina e zona pranzo, due camere da letto, bagno, loggia e grande terrazza – ideale per momenti di relax e vita all’aperto. È inoltre disponibile un posto auto privato di fronte all’edificio. Costruito con materiali di alta qualità e tecnologie moderne, l’immobile offre anche la possibilità di installare un sistema domotico e soluzioni energetiche efficienti, rendendolo una scelta eccellente sia per viverci che come investimento per affitti turistici. Jadranovo è una delle località più ambite del Quarnero – tranquilla, autentica e circondata da splendide spiagge e natura incontaminata. La vicinanza al mare, i buoni collegamenti e le infrastrutture complete la rendono la scelta ideale per chi cerca una casa moderna al mare per tutto l’anno. Se cercate una nuova costruzione a Jadranovo che unisca qualità, eleganza e posizione eccellente – questo appartamento è un’occasione da non perdere. Contattateci per ulteriori informazioni e assicuratevi il vostro nuovo appartamento al mare.
Contatando l'inserzionista per favore citare il codice dell'immobile: REC-1223832
DIAMOND Real Estate
Telefono: +38552210824
Maggiori informazioni sull'agenziaUltimi immobili del venditore
Immobili correlati