
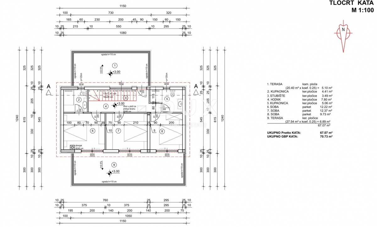
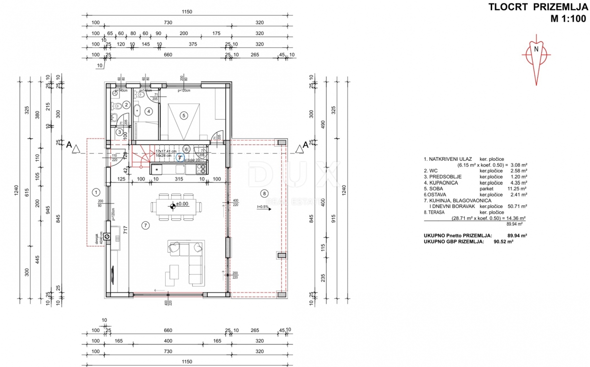
ISOLA DI KRK, MALINSKA (dintorni) - Terreno edificabile con progetto In vendita un terreno edificabile di 581 m2, situato in un tranquillo villaggio. Un'opportunità per investitori o acquirenti privati in cerca di un terreno pronto per la costruzione di una moderna villa con piscina. Il terreno è prevalentemente pianeggiante, il che consente un'integrazione naturale dell'edificio e garantisce un rapido avvio dei lavori senza lavori preparatori. Vista mare dal primo piano della futura villa. È circondato da nuovi edifici e aree verdi, che garantiscono tranquillità e privacy, e allo stesso tempo la vicinanza di tutti i servizi necessari. Viene venduto con la documentazione di progetto completa, il permesso di costruire e le utenze pagate: tutto è pronto per iniziare la costruzione. Il progetto prevede la costruzione di una lussuosa villa di 162 m2 con una piscina con dimensioni interne di 6,60 x 3,60 m e una profondità di 1,5 m. --> Il piano terra (90,50 GBP m²) è composto da ingresso, WC, corridoio, bagno, una stanza, ripostiglio, ampio soggiorno open space con cucina e sala da pranzo, terrazza e scala. --> Il primo piano (70,70 GBP m²) comprende tre camere da letto, due bagni, un corridoio e due ampie terrazze con vista mare. Gli allacciamenti per acqua ed elettricità sono nelle vicinanze, non c'è un sistema fognario nella zona, quindi è necessaria la costruzione di una fossa biologica. Vantaggi: - pronto per la costruzione! - posizione tranquilla e verde - circondato da nuovi edifici - vista mare - investimento o costruzione di una villa familiare Un'opportunità unica per chi desidera iniziare subito a costruire e godersi una casa moderna con vista mare, nella tranquilla zona dell'isola di Krk. *** Gentili clienti, la commissione di agenzia viene addebitata in conformità con i Termini e Condizioni Generali e incolla quanto segue: www.dux-nekretnine.hr/opci-uvjeti-poslovanja
Contatando l'inserzionista per favore citare il codice dell'immobile: REC-1222135
DUX Nekretnine
Telefono: 051518174
Maggiori informazioni sull'agenziaUltimi immobili del venditore
Immobili correlati