Top Banner
Ricerca alfabetica

1.800.000 € - OPATIJA Terreno REC-ID 1215353

Galleria
  • Città: OPATIJA
  • Prezzo (€): 1.800.000 €
  • Superficie: 2485 m2
  • Vista: mare
  • Trasporti: +
  • Vicinanza mare: -
  • Distanza dal centro: 0 m
  • Distanza dal mare: 520 m

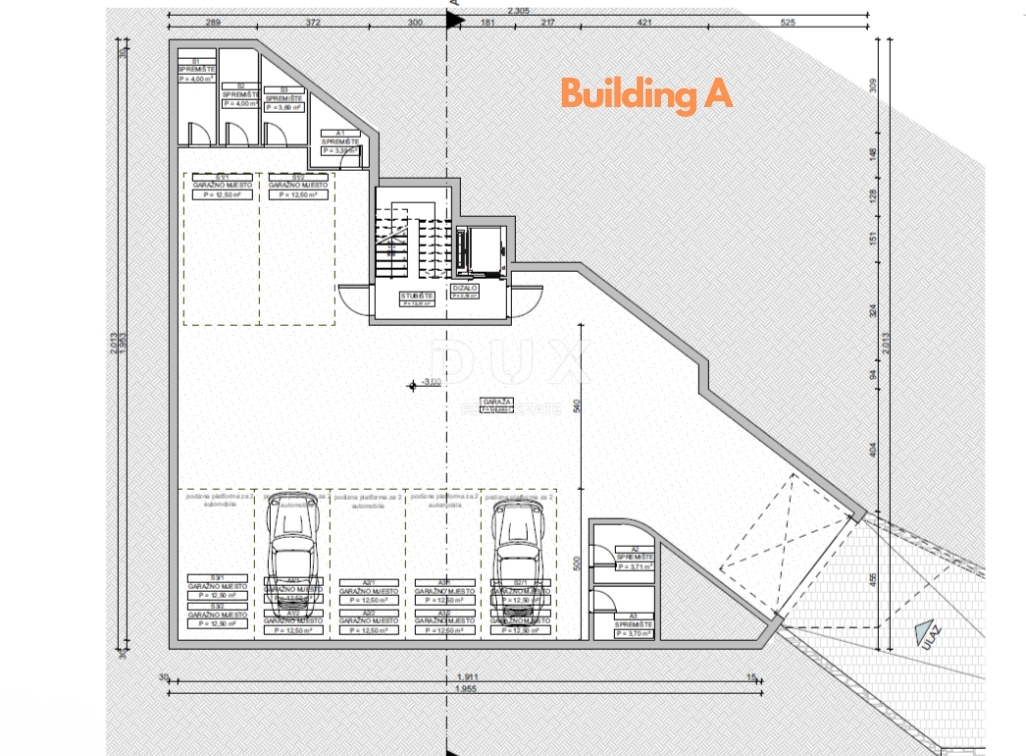
ABBAZIA, CENTRO - nuovo - 3 lotti edificabili per la costruzione di 18 appartamenti di lusso, in posizione dominante rispetto al centro Dall'offerta di qualità DUX, evidenziamo l'opportunità di investimento ad Abbazia. Presentiamo un lotto edificabile di 2485 m² per tre lotti edificabili nel centro di Abbazia. I lotti edificabili menzionati si trovano in una zona residenziale sopra il centro, in una strada tranquilla con un quartiere di qualità e una splendida vista sul mare. La superficie del lotto edificabile è di circa 800-880 m² ed è già disponibile un piano di lottizzazione. Su ogni lotto è possibile costruire un edificio con sei appartamenti di lusso con garage, terrazze e piscine. In totale, la superficie commerciale è di circa 650 m² x 3 lotti edificabili = 1950 m² di superficie commerciale. In queste posizioni, al posto degli appartamenti, è possibile costruire tre lussuose ville con piscina. Esistono già soluzioni concettuali (visualizzazioni) per la costruzione di appartamenti. I lotti hanno una forma regolare e quadrata e sono leggermente in pendenza. Ogni lotto edificabile offre una splendida vista sul mare ed è circondato dal verde del Monte Maggiore e da sentieri escursionistici ricreativi. L'accesso al terreno è di alta qualità, con accesso a una strada asfaltata. Il terreno dispone di tutte le infrastrutture necessarie per la costruzione e, in accordo con l'agenzia, è possibile definire facilmente la progettazione degli edifici. Questa è un'ottima opportunità per investimenti e sviluppo di progetti nel centro di Abbazia, dove è una vera rarità trovare terreni di questo tipo. Per organizzare una visita all'immobile, contattate l'agenzia con fiducia: è possibile una consulenza in tedesco. Gentili clienti, la commissione d'agenzia viene addebitata in conformità con i Termini e Condizioni Generali: www.dux-nekretnine.hr/opci-uvjeti-poslovanja

Contatta venditore

Contatto: DUX Nekretnine
Immobile: Terreno - Vendita - OPATIJA
RECID: 1215353

Aggiungi proprietà
Right Details Banners
Roto Details Banners