Top Banner
Ricerca alfabetica

341.730 € - VARAŽDIN Casa REC-ID 1208358

Galleria
  • Città: VARAŽDIN
  • Prezzo (€): 341.730 €
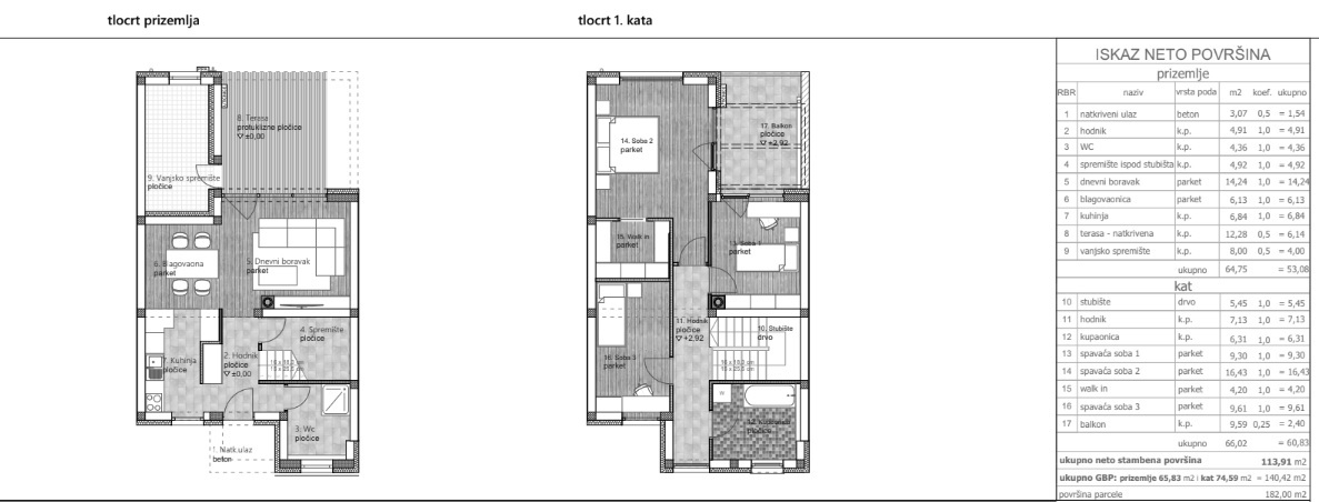
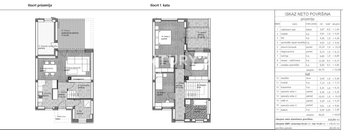
  • Superficie: 113 m2
  • Vani: 4
  • Parcheggio: 24 m2
  • Terra: 182 m2
  • Bagni: 1
  • Trasporti: +
  • Vicinanza mare: -
  • Distanza dal centro: 0 m
  • Distanza dal mare: 0 m

Nuova costruzione in un contesto tranquillo – funzionale casa a schiera con giardino In vendita un'unità abitativa moderna situata in una fila di sei case, ideale per una vita familiare tranquilla. La posizione è silenziosa e piacevole, ma allo stesso tempo offre rapido accesso a tutti i servizi essenziali – nelle vicinanze si trovano scuole, asili, negozi, farmacia, ufficio postale e il centro città. La proprietà viene costruita con la formula "chiavi in mano", con completamento previsto entro la fine del 2026. Caratteristiche dell’immobile: - Due piani: piano terra + primo piano - Tetto piano non calpestabile - Classe energetica A+ - Orientamento della casa: nord – sud Impianti e dotazioni: - Riscaldamento tramite pompa di calore elettrica in tutti gli ambienti - Raffrescamento assicurato da condizionatori - Infissi bianchi in PVC con vetrocamera triplo strato e tapparelle integrate - Combinazione di piastrelle in ceramica e parquet come pavimentazione - Inoltre: ripostiglio esterno incluso nel prezzo Giardino e area esterna: La casa è dotata di un giardino di circa 92 m2, il cui prezzo viene calcolato separatamente a 150 EUR/m2. Distribuzione degli ambienti – vedere piantina allegata e lista delle superfici: PIANO TERRA: Ingresso coperto, corridoio, WC, ripostiglio sotto la scala, cucina, sala da pranzo, soggiorno con uscita sul terrazzo coperto e ripostiglio esterno. PRIMO PIANO: Scala, corridoio, bagno, tre camere da letto (una con cabina armadio), e balcone. Resto a disposizione per ulteriori informazioni; Saša Martišek, agente autorizzato T: 097 754 77 75 E: sasa.martisek@c21.hr CENTURY 21 LIDER NEKRETNINE

Contatta venditore

Contatto: CENTURY 21 Lider Nekretnine
Immobile: Casa - Vendita - VARAŽDIN
RECID: 1208358

Agent

Agente responsabile di questa proprietà in VARAŽDIN di 341.730 €

Saša Martišek

Telefono: +385977547775

Fare una chiamata Contatta venditore

CONTATTO INSERZIONISTA

Contatando l'inserzionista per favore citare il codice dell'immobile: REC-1208358

CENTURY 21 Lider Nekretnine

CENTURY 21 Lider Nekretnine

Telefono: +38598492873

Maggiori informazioni sull'agenzia
Aggiungi proprietà
Right Details Banners
Roto Details Banners