Top Banner
Ricerca alfabetica

400.000 € - MEDULIN Casa REC-ID 1068628

Galleria
  • Città: MEDULIN
  • Prezzo (€): 400.000 €
  • Vani: 6
  • Parcheggio: 1 m2
  • Terra: 810 m2
  • Bagni: 4
  • Trasporti: -
  • Vicinanza mare: -
  • Distanza dal centro: 0 m
  • Distanza dal mare: 0 m

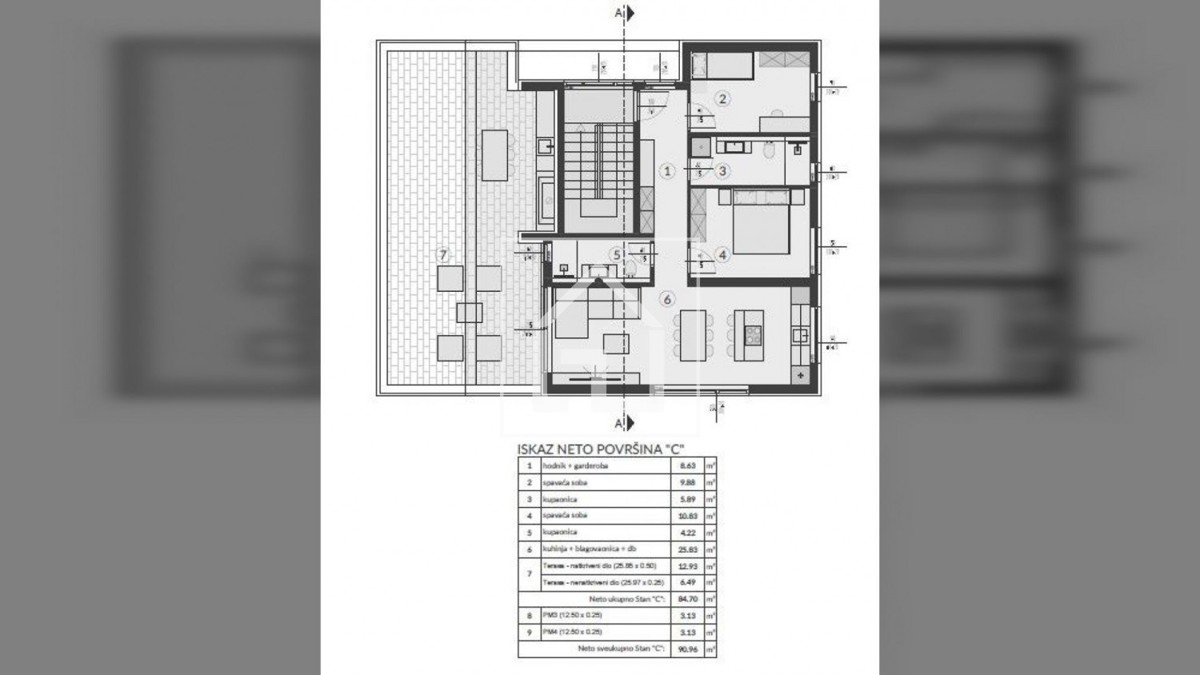
Medolino, casa con 3 appartamenti separati, nuovo progetto in costruzione. Questa interessante proprietà si trova su un terreno di 810 m2 ed è composta da un piano terra e un piano superiore. Ci sono 2 appartamenti al piano terra, ogni appartamento ha un posto auto: Appartamento marcato "A" della superficie netta di 58,11 mq - disimpegno+spogliatoio, due camere da letto, cucina+pranzo+soggiorno, bagno, ripostiglio, porzione di giardino di 110 mq. Appartamento denominato "B" della superficie netta di 58,11 mq - disimpegno+spogliatoio, due camere da letto, cucina+pranzo+soggiorno, bagno, ripostiglio, porzione di giardino di 100 mq. C'è 1 appartamento al primo piano, dispone di 2 posti auto: Appartamento contrassegnato "C" della superficie netta di 84,70 mq - disimpegno + antibagno, due camere da letto, cucina + sala da pranzo + soggiorno, due bagni e ampio terrazzo. Ideale per locazione turistica o abitazione familiare. Il prezzo è di € 400.000,00 ed è solo tanto per quel livello di completamento: mattoni e costruzione fino a "sotto il tetto".

Contatta venditore

Contatto: B.B.M. REAL ESTATE
Immobile: Casa - Vendita - MEDULIN
RECID: 1068628

Aggiungi proprietà
Right Details Banners
Roto Details Banners