PULA – NOVOGRADNJA | Stan u prizemlju 50,80 m² | terasa | garažno parkirno mjesto
PULA – NOVOGRADNJA | Stan u prizemlju 50,80 m² | terasa | garažno parkirno mjesto
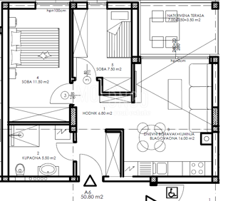
U ponudi je stan u novogradnji u Puli, smješten u prizemlju moderne stambene zgrade, ukupne površine 50,80 m². Projekt je trenutno u izgradnji, a planirani završetak radova je listopad 2027. godine.
Stan je funkcionalnog rasporeda i sastoji se od:
ulaznog hodnika
dvije spavaće sobe
kupaonice
kuhinje s blagovaonicom
dnevnog boravka
terase s izlazom iz dnevnog boravka
Stanovi se prodaju po sistemu „ključ u ruke".
Uz stan je obavezna kupnja garažnog parkirnog mjesta po cijeni od 18.500 €.
Postoji i mogućnost kupnje spremišta u podrumu zgrade (nije uvjet kupnje).
Planirani završetak izgradnje je 10/2027. godine.
Nekretnina predstavlja odličnu priliku za stanovanje ili investiciju.
Interni broj: 1272184 REC - 6073
REC ID: 1272184
PULA – NOVOGRADNJA | Stan u prizemlju 50,80 m² | terasa | garažno parkirno mjesto
Description not available in English. Check out other languages.
Intrnal number: 6073
REC ID: 1272184
PULA – NOVOGRADNJA | Stan u prizemlju 50,80 m² | terasa | garažno parkirno mjesto
Beschreibung leider nicht auf Deutsch. Bitte wählen Sie andere Sprachen.
Interne Nummer: 6073
REC ID: 1272184
PULA – NOVOGRADNJA | Stan u prizemlju 50,80 m² | terasa | garažno parkirno mjesto
Description not available in Italian. Check out other languages.
Numero interno: 6073
REC ID: 1272184
PULA – NOVOGRADNJA | Stan u prizemlju 50,80 m² | terasa | garažno parkirno mjesto
Описание на русском языке отсутствует. Пожалуйста, посмотрите описания на других языках
Внутренний номер: 6073
REC ID: 1272184