| 
			  
    
      | 
		
			  | 
		
		
		
		 
        
          | Cijena: | 289,184 € |  
          | Mjesto: | OMIŠ |  
          | Površina: | 68 m2 |  
          | Broj soba: | 2 |  
          | Broj kupaona: | 1 |  
          | Garaža: | 1 |  
          | Broj pregleda: | Broj pregleda |  |  
		
		
			
				
				
				Jednosoban stan s velikom terasom D1-S02
				
				
 Komforan jednosoban stan u Nemiri – Samo 150 m od Plaže
 
 U prodaji je elegantan jednosoban stan smješten u prizemlju nove moderne zgrade u mirnom dijelu Nemire, svega 150 metara od predivnih šljunčanih plaža.
 Ovaj stan nudi idealan spoj udobnosti, luksuza i blizine mora – savršen za život, odmor ili kao investicija.
 
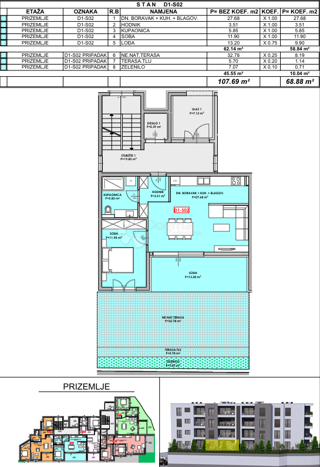
 Površina:
 
 Bruto: 107,69 m²
 
 Neto: 68,88 m²
 
 Raspored prostorija:
 Stan se sastoji od prostranog dnevnog boravka povezanog s kuhinjom i blagovaonicom, jedne udobne spavaće sobe, modernog kupatila i hodnika.
 Opremljen je vrhunskim materijalima i dizajnom koji odiše elegancijom i ugodom.
 
 Posebnu vrijednost daje velika terasa od 45,55 m², djelomično natkrivena, idealna za uživanje na otvorenom, druženja s obitelji ili opuštanje uz dalmatinsko sunce.
 Zeleni pojas oko zgrade dodatno doprinosi privatnosti i miru, stvarajući savršen ambijent za svakodnevni život.
 
 Lokacija:
 Nemira je poznata po kristalno čistom moru, borovim šumama i predivnim plažama. U neposrednoj blizini nalaze se Omiš i Split, što omogućuje brz pristup svim gradskim sadržajima, restoranima i kulturnim događanjima.
 
 Okolica pruža brojne mogućnosti za aktivan odmor – rafting i zip-line na rijeci Cetini, planinarenje te izlete brodom na otoke Brač i Hvar.
 
 Dodatne mogućnosti:
 
 Garažno mjesto: 1.850 €/m²
 
 Vanjsko parkirno mjesto: 1.000 €/m²
 
 Ostava: 1.850 €/m²
 
 Ovaj stan je savršen izbor za obiteljski život, luksuzni odmor ili kao investicija s velikim potencijalom za turistički najam.
 Ako tražite mjesto koje spaja mir, prirodu i blizinu mora – stan u Nemiri je idealan izbor.
 
 Kontakt:
 Marija Bošnjak
 Makarska
 Tel: +385 95 37 27 471
 Email: marija.bosnjak@dogma-nekretnine.com
 
			Interni broj: 1229958 REC - ST4410
			 
			REC ID: 1229958
			 
				
                Flat Omiš, 80,52m2
 Spacious One-Bedroom Apartment in Nemira – Only 150 m from the Beach
 
 For sale is an elegant one-bedroom apartment located on the ground floor of a modern new building in a peaceful part of Nemira, just 150 meters from beautiful pebble beaches.
 This apartment offers the perfect combination of comfort, luxury, and proximity to the sea – ideal for living, holidays, or as an investment.
 
 Area:
 
 Gross: 107.69 m²
 
 Net: 68.88 m²
 
 Layout:
 The apartment consists of a spacious living room connected with the kitchen and dining area, one comfortable bedroom, a modern bathroom, and a hallway.
 It is equipped with top-quality materials and designed to provide elegance, warmth, and comfort.
 
 A special highlight is the large terrace of 45.55 m², partially covered, ideal for outdoor relaxation, family gatherings, or enjoying the Dalmatian sunshine.
 The green zone surrounding the building adds extra privacy and peace, creating a perfect setting for everyday living.
 
 Location:
 Nemira is known for its crystal-clear sea, pine forests, and beautiful beaches. The nearby towns of Omiš and Split offer quick access to urban amenities, restaurants, and cultural attractions.
 
 The surroundings provide numerous opportunities for an active lifestyle – rafting and zip-line on the Cetina River, hiking, and boat trips to the islands of Brač and Hvar.
 
 Additional options:
 
 Garage space: €1,850/m²
 
 Outdoor parking: €1,000/m²
 
 Storage room: €1,850/m²
 
 This apartment is the perfect choice for a comfortable lifestyle, a luxurious holiday home, or as an investment with excellent rental potential.
 If you are looking for a place that combines peace, nature, and proximity to the sea – this apartment in Nemira is the ideal choice.
 
 Contact:
 Marija Bošnjak
 Makarska
 Tel: +385 95 37 27 471
 Email: marija.bosnjak@dogma-nekretnine.com
 
			Intrnal number: ST4410
			 
			REC ID: 1229958
			 
				
                Wohnung Omiš, 80,52m2
 Geräumige Einzimmerwohnung in Nemira – Nur 150 m vom Strand entfernt
 
 Zum Verkauf steht eine elegante Einzimmerwohnung im Erdgeschoss eines modernen Neubaus in der ruhigen Gegend von Nemira, nur 150 Meter von den wunderschönen Kieselstränden entfernt.
 Diese Wohnung bietet die perfekte Kombination aus Komfort, Luxus und Meeresnähe – ideal zum Wohnen, für den Urlaub oder als Investition.
 
 Fläche:
 
 Brutto: 107,69 m²
 
 Netto: 68,88 m²
 
 Raumaufteilung:
 Die Wohnung besteht aus einem großzügigen Wohnzimmer mit offener Küche und Essbereich, einem gemütlichen Schlafzimmer, einem modernen Badezimmer und einem Flur.
 Sie ist mit hochwertigen Materialien ausgestattet und mit viel Liebe zum Detail gestaltet, um Eleganz, Wärme und Wohnkomfort zu vereinen.
 
 Ein besonderes Highlight ist die große, teilweise überdachte Terrasse von 45,55 m² – ideal zum Entspannen im Freien, für gesellige Abende oder um die dalmatinische Sonne zu genießen.
 Der begrünte Bereich rund um das Gebäude sorgt für zusätzliche Privatsphäre und Ruhe und schafft eine perfekte Atmosphäre für den Alltag.
 
 Lage:
 Nemira ist bekannt für sein kristallklares Meer, die Kiefernwälder und die wunderschönen Strände. Die Nähe zu Omiš und Split ermöglicht schnellen Zugang zu allen städtischen Annehmlichkeiten, Restaurants und kulturellen Sehenswürdigkeiten.
 
 Die Umgebung bietet zahlreiche Freizeitmöglichkeiten – Rafting und Zip-Lining auf dem Fluss Cetina, Wandern oder Bootsausflüge zu den Inseln Brač und Hvar.
 
 Zusätzliche Optionen:
 
 Tiefgaragenstellplatz: 1.850 €/m²
 
 Außenstellplatz: 1.000 €/m²
 
 Abstellraum: 1.850 €/m²
 
 Diese Wohnung ist die perfekte Wahl für ein komfortables Zuhause, als luxuriöses Feriendomizil oder als Investition mit großem Vermietungspotenzial.
 Wenn Sie einen Ort suchen, der Ruhe, Natur und Meeresnähe vereint – ist diese Wohnung in Nemira die ideale Wahl.
 
 Kontakt:
 Marija Bošnjak
 Makarska
 Tel: +385 95 37 27 471
 E-Mail: marija.bosnjak@dogma-nekretnine.com
 
			Interne Nummer: ST4410
			 
			REC ID: 1229958
			 
				
                Allogio Omiš, 80,52m2
 Description not available in Italian. Check out other languages.
 
			Numero interno: ST4410
			 
			REC ID: 1229958
			 
				
                Квартира Omiš, 80,52m2
 Описание на русском языке отсутствует. Пожалуйста, посмотрите описания на других языках
 
			Внутренний номер: ST4410
			 
			REC ID: 1229958
			 
	
    OMIŠSPLITSKO-DALMATINSKA
 Hrvatska (Croatia)
    
    43,4386932931
    16,6964334605
 
	
    	No video
    
 | 
    
	
	Kod kontakta obavezno navesti šifru nekretnine: REC-1229958 
			  
				Rijeka  
			    
				Telefon 1: 051 330 065Telefon 2: 051/341-080
 
 Web site:
 https://www.dogma-nekretn...
 Posljednje nekretnine prodavatelja
		
			Stan, OMIŠ (338,184 €)Kuća, DONJA DUBRAVA (200 €)Zemljište, MILNA (440,760 €)Zemljište, MARKUŠEVEC (37,380 €)Zemljište, RAŽANJ (160,000 €)Zemljište, RAŽANJ (499,000 €)Stan, NOVI VINODOLSKI (250,000 €)Stan, NOVI VINODOLSKI (260,000 €)Stan, BAČVICE (430,000 €)Kuća, KAŠTEL STARI (1,200,000 €)  
 Vezane nekretnineNekretnine OMIŠ
	Kuće OMIŠ
	Stanovi OMIŠ
	Zemljišta OMIŠ
	Poslovni prostori OMIŠ |