|
| Preis: |
181,920 €
|
| Stadt: |
BLATO |
| Areal: |
60 m2 |
| Zimmer: |
2 |
| Badezimmer: |
1 |
| Etage: |
1 |
| Anzahl der Besucher: |
Anzahl der Besucher |
|
Stan: Zagreb (Sveta Klara), 60.64 m2, novogradnja
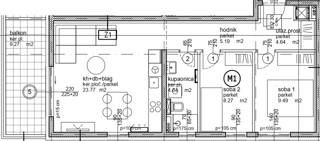
Prodaje se trosobni stan 1-C1 neto korisne površine 60,64 m2 na 1. katu dvokatnice bez dizala u izgradnji s 18 stanova od 36 m2 do 82 m2 na adresi Lukoranska 19, Zagreb, u neposrednoj blizini trgovačkog centra Arena. Zatvoreni dio površine 56 m2 sastoji se od hodnika, dnevnog boravka s kuhinjom i blagovaonicom, dvije spavaće sobe i kupaonice s WC-om, dok ostatak površine otpada na balkon od 9,27 m2 (obračunski 4,64 m2). Orijentacija: sjeverozapad – jugozapad. Uz stan, kupcima mogu birati između 13 vanjskih nenatkrivenih parkirnih mjesta (12.000 EUR) i 5 natkrivenih parkirnih mjesta (24.000 EUR). Gradnja će početi početkom 2026. godine, a useljenje je predviđeno za proljeće 2027. godine i stanovi su u vlasništvu pravne osobe tako da je PDV uključen u cijenu pa kupac ne plaća porez na promet nekretnina. U neposrednoj blizini nalaze se svi sadržaji potrebni za svakodnevni život. Što se tehničke izvedbe tiče, zgrada je armirano-betonska s pregradnim zidovima unutar stanova od knaufa, ima izolaciju od stiropora, PVC stolariju s aluminijskim roletama, protuprovalno-protupožarna vrata, video-nadzor ulaza i video portafon, otvaranje ulaznih vrata pomoću čipa, podno grijanje preko dizalica topline, klima-uređaje, parket… Više stanova naše ponude možete vidjeti na stranici https://www.casacroatia.hr/novogradnja .
Interni broj: 1228953 REC - 797
REC ID: 1228953
Intrnal number: 797
REC ID: 1228953
Wohnung - Verkauf - GRAD ZAGREB - ZAGREB - BLATO
Interne Nummer: 797
REC ID: 1228953
Numero interno: 797
REC ID: 1228953
Внутренний номер: 797
REC ID: 1228953
BLATO, ZAGREB GRAD ZAGREB Hrvatska (Croatia)
45.7624624
15.9537114
No video
|
Wenn Sie den Anbieter kontaktieren bitte anführen Sie die Immobilienkennziffer: REC-1228953
Velika Gorica
Telefon 1: 098 98 31 336
Web site: https://www.casacroatia.h...
Letzte Immobilien des Verkäufers
- Wohnung, SRIMA (1,250,000 €)
- Wohnung, SRIMA (650,000 €)
- Wohnung, SRIMA (600,000 €)
- Wohnung, VELIKA GORICA (137,900 €)
- Wohnung, VELIKA GORICA (145,950 €)
- Wohnung, VELIKA GORICA (236,950 €)
- Wohnung, VELIKA GORICA (142,120 €)
- Wohnung, VELIKA GORICA (141,440 €)
- Wohnung, VELIKA GORICA (176,960 €)
- Wohnung, VELIKA GORICA (114,450 €)
|