|
| Price: |
92,100 €
|
| City: |
ŽMINJ |
| Area: |
0 m2 |
| Rooms: |
0 |
| Land: |
1375 m2 |
| Bathrooms: |
0 |
| Number of views: |
Number of views |
|
Prodaja - građevinsko zemljište s projektom za izgradnju vile prizemnice, Žminj V1
Na prodaju je atraktivno građevinsko zemljište smješteno u srcu Istre, između povijesnih gradića Gračišća, Lindara i Žminja. Parcela se nalazi na blagom uzvišenju, okružena hrastovom šumom, što pruža savršeno okruženje za sve koji cijene prirodu, mir i privatnost.
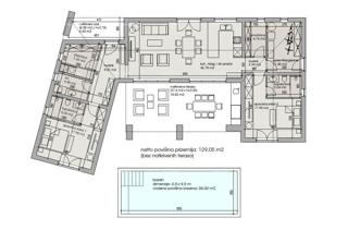
Osnovne informacije: -Površina parcele: 1.375 m² -Neto površina kuće: 129 m² unutarnjeg prostora -Natkrivena terasa: 38 m² -Natkriveni ulaz: 8 m² -Broj etaža: prizemnica -Parkirna mjesta: 2
Projekt predviđa kombinaciju suvremene arhitekture i tradicionalnog mediteranskog stila, s naglaskom na prirodne materijale poput kamena, drva i betona. Velike staklene stijene povezuju unutarnje prostore s okolnim krajolikom, pružajući otvoren pogled na prirodu i bazen.
Raspored prostorija
Prizemlje: otvoreni koncept dnevnog boravka, kuhinje i blagovaonice, gospodarska prostorija s toaletom te spavaća soba s vlastitom kupaonicom. Iz dnevnog dijela izlazi se na natkrivenu terasu i bazen.
Podovi su obloženi parketom, dok su u kupaonicama keramičke pločice.
Značajke: -Grijanje i hlađenje putem toplinske pumpe -Podno grijanje u kupaonicama -Fan-coil sustav u ostalim prostorijama -Kamin na drva u dnevnom boravku -Bazen površine 38 m² s kamenom oblogom, mozaik-pločicama i sunčalištem
Udaljenost od mora: 28 km
Prekrasna mediteranska vila koja spaja modernu udobnost i tradicionalni istarski šarm. Smještena u mirnom dijelu središnje Istre, okružena šumom, a opet u blizini slikovitih gradića. Idealna za odmor ili kao investicija.
Za dodatne informacije, molimo kontaktirajte:
Azra +385 91 611 5706 +385 98 420 885 azra@almadominvest.com
Interni broj: 1224857 REC - 24627
REC ID: 1224857
Sale - construction land with a project for building a single-story villa, Žminj V1
For sale is an attractive building plot located in the heart of Istria, between the historic towns of Gračišće, Lindar, and Žminj. The parcel is situated on a gentle elevation, surrounded by an oak forest, providing a perfect environment for those who appreciate nature, peace, and privacy.
Basic information: - Parcel area: 1,375 m² - Net area of the house: 129 m² of interior space - Covered terrace: 38 m² - Covered entrance: 8 m² - Number of floors: single-story - Parking spaces: 2
The project envisions a combination of modern architecture and traditional Mediterranean style, with an emphasis on natural materials such as stone, wood, and concrete. Large glass walls connect the interior spaces with the surrounding landscape, offering an open view of nature and the pool.
Room layout:
Ground floor: open concept living room, kitchen, and dining area, utility room with a toilet, and a bedroom with an en-suite bathroom. The living area opens onto the covered terrace and pool.
The floors are covered with parquet, while the bathrooms feature ceramic tiles.
Features: - Heating and cooling via a heat pump - Underfloor heating in the bathrooms - Fan-coil system in other rooms - Wood-burning fireplace in the living room - Pool area of 38 m² with stone cladding, mosaic tiles, and a sunbathing area
Distance from the sea: 28 km
A beautiful Mediterranean villa that combines modern comfort with traditional Istrian charm. Located in a quiet part of central Istria, surrounded by forest, yet close to picturesque towns. Ideal for vacation or as an investment.
For more information, please contact:
Azra +385 91 611 5706 +385 98 420 885 azra@almadominvest.com
Intrnal number: 24627
REC ID: 1224857
Verkauf - Baugrundstück mit Projekt für den Bau einer einstöckigen Villa, Žminj V1
Zum Verkauf steht ein attraktives Baugrundstück im Herzen Istriens, zwischen den historischen Städten Gračišće, Lindar und Žminj. Das Grundstück befindet sich auf einer sanften Erhebung, umgeben von Eichenwald, was eine perfekte Umgebung für alle bietet, die die Natur, Ruhe und Privatsphäre schätzen.
Grundinformationen: -Fläche des Grundstücks: 1.375 m² -Nettowohnfläche des Hauses: 129 m² Innenraum -Bedeckte Terrasse: 38 m² -Bedeckter Eingang: 8 m² -Anzahl der Etagen: Erdgeschoss -Parkplätze: 2
Das Projekt sieht eine Kombination aus moderner Architektur und traditionellem mediterranem Stil vor, mit einem Fokus auf natürliche Materialien wie Stein, Holz und Beton. Große Glaswände verbinden die Innenräume mit der umliegenden Landschaft und bieten einen offenen Blick auf die Natur und den Pool.
Raumaufteilung
Erdgeschoss: Offenes Konzept für Wohn- und Essbereich, Küche, Wirtschaftsraum mit Toilette sowie ein Schlafzimmer mit eigenem Bad. Vom Wohnbereich gelangt man auf die überdachte Terrasse und den Pool.
Die Böden sind mit Parkett ausgelegt, während in den Bädern keramische Fliesen verlegt sind.
Merkmale: -Heizung und Kühlung über eine Wärmepumpe -Fußbodenheizung in den Bädern -Fan-Coil-System in den anderen Räumen -Holzkamin im Wohnzimmer -Pool mit einer Fläche von 38 m², mit Steinverkleidung, Mosaikfliesen und Liegefläche
Entfernung zum Meer: 28 km
Wunderschöne mediterrane Villa, die modernen Komfort mit traditionellem istrischen Charme verbindet. Gelegen in einem ruhigen Teil des zentralen Istrien, umgeben von Wald und dennoch in der Nähe malerischer Städte. Ideal für einen Urlaub oder als Investition.
Für weitere Informationen kontaktieren Sie bitte:
Azra +385 91 611 5706 +385 98 420 885 azra@almadominvest.com
Interne Nummer: 24627
REC ID: 1224857
Vendita - terreno edificabile con progetto per la costruzione di una villa unifamiliare, Žminj V1
In vendita un terreno edificabile attraente situato nel cuore dell'Istria, tra i storici paesini di Gračišće, Lindar e Žminj. Il lotto si trova su un leggero rilievo, circondato da una foresta di querce, offrendo un ambiente perfetto per chi apprezza la natura, la tranquillità e la privacy.
Informazioni di base: -Superficie del lotto: 1.375 m² -Superficie netta della casa: 129 m² di spazio interno -Terrazza coperta: 38 m² -Ingresso coperto: 8 m² -Numero di piani: piano terra -Posti auto: 2
Il progetto prevede una combinazione di architettura moderna e stile mediterraneo tradizionale, con un'enfasi su materiali naturali come pietra, legno e cemento. Grandi pareti vetrate collegano gli spazi interni con il paesaggio circostante, offrendo una vista aperta sulla natura e sulla piscina.
Distribuzione degli spazi
Piano terra: concetto open space per il soggiorno, la cucina e la sala da pranzo, locale tecnico con bagno e camera da letto con bagno privato. Dal soggiorno si accede alla terrazza coperta e alla piscina.
I pavimenti sono rivestiti in parquet, mentre nei bagni ci sono piastrelle in ceramica.
Caratteristiche: -Riscaldamento e raffreddamento tramite pompa di calore -Riscaldamento a pavimento nei bagni -Sistema fan-coil nelle altre stanze -Camino a legna nel soggiorno -Piscina di 38 m² con rivestimento in pietra, piastrelle a mosaico e area solarium
Distanza dal mare: 28 km
Bellissima villa mediterranea che unisce comfort moderno e fascino tradizionale istriano. Situata in una zona tranquilla della centrale Istria, circondata da boschi, ma comunque vicina a pittoreschi paesini. Ideale per una vacanza o come investimento.
Per ulteriori informazioni, si prega di contattare:
Azra +385 91 611 5706 +385 98 420 885 azra@almadominvest.com
Numero interno: 24627
REC ID: 1224857
Продажа - строительный участок с проектом для строительства одноэтажной виллы, Жминь V1
На продажу предлагается привлекательный земельный участок, расположенный в сердце Истрии, между историческими городками Грачиште, Линдар и Жминь. Участок находится на легком возвышении, окруженный дубовым лесом, что создает идеальную атмосферу для всех, кто ценит природу, спокойствие и уединение.
Основная информация: - Площадь участка: 1.375 м² - Чистая площадь дома: 129 м² внутреннего пространства - Крытая терраса: 38 м² - Крытый вход: 8 м² - Количество этажей: одноэтажный - Парковочные места: 2
Проект предполагает сочетание современной архитектуры и традиционного средиземноморского стиля, с акцентом на натуральные материалы, такие как камень, дерево и бетон. Большие стеклянные стены соединяют внутренние пространства с окружающим ландшафтом, обеспечивая открытый вид на природу и бассейн.
Планировка помещений:
Первый этаж: открытая концепция гостиной, кухни и столовой, хозяйственное помещение с туалетом и спальня с собственной ванной комнатой. Из гостиной есть выход на крытую террасу и бассейн.
Полы покрыты паркетом, в ванных комнатах - керамическая плитка.
Особенности: - Отопление и охлаждение с помощью теплового насоса - Теплый пол в ванных комнатах - Система фанкойлов в остальных помещениях - Дровяной камин в гостиной - Бассейн площадью 38 м² с каменной облицовкой, мозаичной плиткой и зоной для загара
Расстояние до моря: 28 км
Прекрасная средиземноморская вилла, которая сочетает в себе современный комфорт и традиционный истарский шарм. Расположена в тихом районе центральной Истрии, окруженная лесом, но в то же время рядом с живописными городками. Идеальна для отдыха или как инвестиция.
Для получения дополнительной информации, пожалуйста, свяжитесь с:
Азра +385 91 611 5706 +385 98 420 885 azra@almadominvest.com
Внутренний номер: 24627
REC ID: 1224857
ŽMINJ ISTARSKA Hrvatska (Croatia)
45,1452
13,9077
No video
|
When contacting the owner please refer to the property code: REC-1224857
Pula
Phone 1: +385916115706
Phone 2: +38598323264
GSM: +385 91 6115706 +38598420885 +385991962863
Web site: https://www.therealestate...
Agent
Azra Valjevac
Phone: +61421637418
GSM: +385916115706
E-mail:
azra@almadominvest.com
Foreign languages: Talijanski, Engleski, Bosanski
Last entries
- House, SVETVINČENAT (250,000 €)
- House, PULA (499,000 €)
- House, PULA (850,000 €)
- House, BUJE (153,000 €)
- House, LIŽNJAN (465,000 €)
- House, PULA (680,000 €)
- Flat, MEDULIN (250,000 €)
- House, PULA (600,000 €)
- House, SVETVINČENAT (680,000 €)
- Flat, BARBARIGA (92,000 €)
|