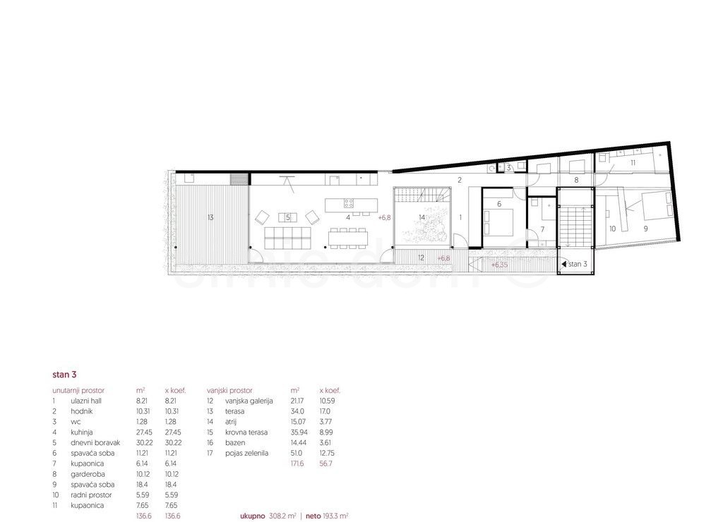
Квартиры в деревне BLATO - по цене 772.000,00 € - площадью 193 m2

Фото агентства ŠIMIĆ DOM d.o.o.

REC ID 957925

Подробности