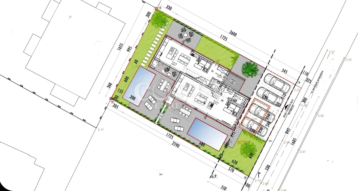
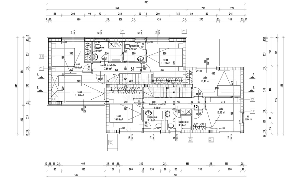
Дома в деревне PRIVLAKA - по цене 550.000,00 € - площадью 90 m2

Фото агентства Costa Nekretnine

REC ID 1256265

Подробности