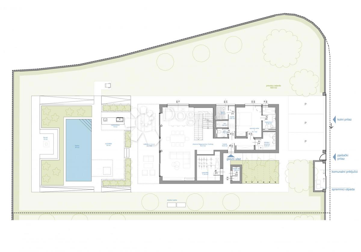
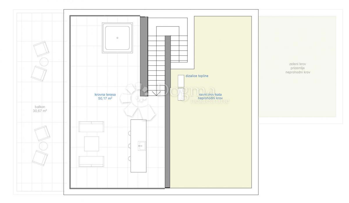
Дома в деревне POREČ - по цене 1.250.000,00 € - площадью 204 m2

Фото агентства Dogma nekretnine d.o.o.

REC ID 1254571

Подробности