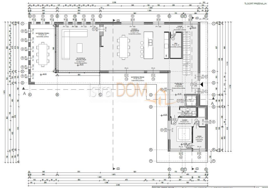
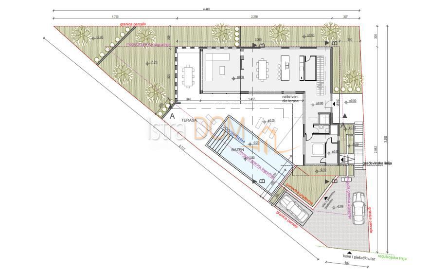
Участки в деревне GOLAŠ - по цене 315.000,00 € - площадью 834 m2

Фото агентства Istradom

REC ID 1251203

Подробности