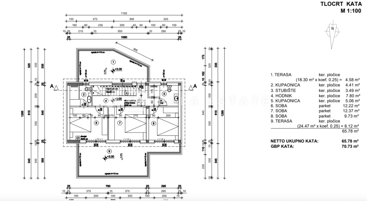
Дома в деревне MALINSKA - по цене 630.000,00 € - площадью 153 m2

Фото агентства Vala Estate

REC ID 1242338

Подробности