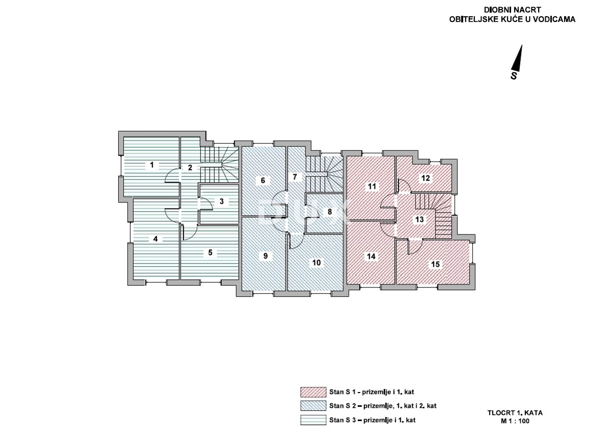
Квартиры в деревне VODICE - площадью 136 m2

Фото агентства DUX Nekretnine

REC ID 1231136

Подробности